team19 Immobilien GmbH

Herr Paul Bichelhuber

ERLEBEN SIE WOHNGLÜCK: IHR TRAUMHAFTES EIGENHEIM IM 22. BEZIRK AUF EIGENGRUND - JETZT ANFRAGEN

€ 409.000,37
Kaufpreis
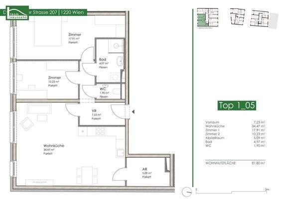
81 m²
Wohnfläche ca.
3
Zimmer
Finanzierung berechnen mit durchblicker

Der Anbieter dieses Objekts hat gegenüber der AVIV Germany GmbH als Betreiber dieses Online-Marktplatzes erklärt, nicht als Unternehmer im Sinne des § 1 KSchG zu handeln. Die im Verbraucherschutzrecht der Union verankerten Verbraucherrechte (insbesondere Informationspflichten und Rücktritts- bzw. Widerrufsrechte) finden auf den Vertrag zwischen dem Anbieter des Objekts und Ihnen (dem Interessenten) keine Anwendung.

Gewerblicher Anbieter

Der Anbieter dieses Objekts hat gegenüber der AVIV Germany GmbH als Betreiber dieses Online-Marktplatzes erklärt, als Unternehmer im Sinne des § 1 KSchG zu handeln.

AdresseDonaufelder Straße 207
1220 Wien 
(Donaustadt)
Auf Karte ansehen

Preise & Kosten

Kaufpreis € 409.000,37

Provision für Käufer

3% des Kaufpreises zzgl. 20% USt.

Lage

In der Nähe: Kagraner Platz, U1, Wagramer Straße

Die Wohnung

Wohnungslage

1. Geschoss

Bezug

ab sofort

  • Bad mit Wanne und Dusche
  • offene Küche
  • Böden: Fliesenboden, Parkett
  • Zustand: Erstbezug

Wohnanlage

  • Baujahr: 2023
  • Zustand: Neubau
  • Personenaufzug

Energie & Heizung

Heizwärmebedarf (HWB)

B

43,60 kWh/(m²·a)

Gesamtenergieeffizienz (fGEE)

A

0,77

Weitere Energiedaten

Heizungsart

Fußbodenheizung

Details

Objektbeschreibung

IHR TRAUMHAFTES EIGENHEIM IM 22. BEZIRK - U-Bahn-Nähe - VIRTUELLER 3D RUNDGANG JETZT VERFÜGBAR

Willkommen in Ihrer exklusiven Wohnoase im begehrten 22. Bezirk! Dieses herausragende Neubauprojekt definiert das Wohnen neu, dank einer einzigartigen Lage, die nicht nur ein Zuhause, sondern auch eine perfekte Anbindung an...

Mehr anzeigen

Weitere Informationen

Stichworte
Garage vorhanden, Fahrradraum, Rolladen, Nutzfläche: 81,00 m², Gesamtfläche: 81,80 m², Anzahl der Badezimmer: 2, Anzahl der separaten WCs: 2, Bundesland: Wien, 7 Etagen, Wohnungsnr.: 5

Anbieter der Immobilie

Partner

team19 Immobilien GmbH

im Durchschnitt  4,20  Sterne
(bei 2 Bewertungen)

Handelskai 94-96/44. Stock, 1200 BRIGITTENAU

user

Herr Paul Bichelhuber

Dein Ansprechpartner

Anbieter-Website Anbieter-Profil Anbieter-Impressum

Online-ID: 2m6jp5m

Referenznummer: OBGC202512081836046225db47f73a3

Finde Angebote wie dieses

imageimageimage

Günstige Immobilienfinanzierung einfach online berechnen

Persönliches Angebot berechnen

Hier geht es zu unserem Impressum, den Allgemeinen Geschäftsbedingungen, den Hinweisen zum Datenschutz und nutzungsbasierter Online-Werbung.