
Allkauf Haus GmbH
Herr Roland Dreyer
034 ···
Nr. anzeigenPreise & Kosten
Provision für Käufer
provisionsfrei
Lage
Der Grundstückspreis für das Grundstück ist
- NOCH NICHT !!! - im Angebot enthalten.
Bitte haben Sie Verständnis, dass wir ohne ein persönliches Gespräch keine Grundstücksdaten weiterleiten.
Ich darf Grundstücksinformationen ausschließlich an Kunden weitergeben.
Sollte Ihnen dieses Grundstück nicht zusagen...
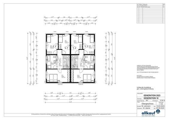
Das Haus
Kategorie
Doppelhaushälfte
Baujahr
2026
Bezug
2026
Energie & Heizung
Warum sehe ich diese Anzeige? – Du siehst diese Anzeige basierend auf Ihrer Navigation auf unserer Website und den Suchkriterien, die du verwendet hast.
Weitere Energiedaten
Haustyp
Niedrigenergiehaus
Heizungsart
Fußbodenheizung, Luft-/Wasser-Wärmepumpe
Details
Objektbeschreibung
Entdecken Sie mit dieser charmanten Doppelhaushälfte in Potsdam ein Zuhause, das ganz nach Ihren individuellen Vorstellungen gestaltet wird. Mit großzügigen 127,3 m² Wohnfläche auf einem 468,21 m² großen Grundstück bietet dieses Haus nicht nur viel Platz, sondern auch die Möglichkeit, Ihre persönlichen Wünsche in die Planung...
Ausstattung
- Gehoben ausgestattete Doppelhaushälfte
- Befeuerungsart: Wärmepumpe für effiziente Energienutzung
- Niedrigenergie Standard für maximale Energieeinsparung
- Badezimmer plus Gäste-WC
- 3-fach verglaste Fenster inklusive Rollläden mit Aluminiumlamellen
- Fußbodenheizung für höchsten Komfort
-...
Weitere Informationen
Sonstiges
allkauf bietet Ihnen maximale Sicherheit, kurze Lieferzeiten und garantierte Fertigstellung. Wir sind Ihr Partner für den Bau Ihres Traumhauses mit Festpreisgarantie und Planungssicherheit.
Zu allen Häusern gehört:
- Energieeffizienzwand
- Echtholztreppe
- Luft-Wasser-Wärmepumpe
-...
Anbieter der Immobilie
Allkauf Haus GmbH
Gletschersteinstr. 53, 04299 Leipzig
Online-ID: 2m6k95p
Referenznummer: ROD-KW50-128498
Finde Angebote wie dieses
Hier geht es zu unserem Impressum, den Allgemeinen Geschäftsbedingungen, den Hinweisen zum Datenschutz und nutzungsbasierter Online-Werbung.