
Rahn Immobilien GmbH & Co.KG
Herr Pavel Vakulich
023 ···
Nr. anzeigenPreise & Kosten
Kaution
3.000,00
Warum sehe ich diese Anzeige? – Du siehst diese Anzeige basierend auf Ihrer Navigation auf unserer Website und den Suchkriterien, die du verwendet hast.
Lage
Die angebotene Etagenwohnung befindet sich in einer charmanten und gut angebundenen Gegend in Herten im Stadtteil Westerholt. Diese Wohnlage zeichnet sich durch eine Mischung aus städtischem Komfort und naturnaher Ruhe aus. Westerholt ist bekannt für seine historische Altstadt, die mit malerischen Fachwerkhäusern und kleinen...
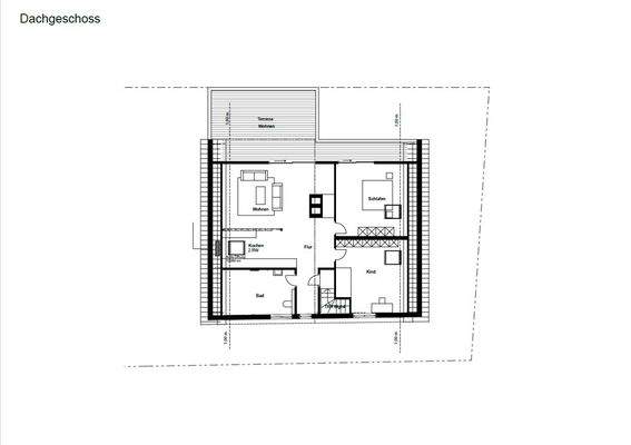
Die Wohnung
Wohnungslage
2. Geschoss
Wohnanlage
Energie & Heizung
Warum sehe ich diese Anzeige? – Du siehst diese Anzeige basierend auf Ihrer Navigation auf unserer Website und den Suchkriterien, die du verwendet hast.
Energieausweistyp
Bedarfsausweis
Gebäudetyp
Wohngebäude
Baujahr laut Energieausweis
1970
Wesentliche Energieträger
LUFTWP
Gültigkeit
bis 31.07.2035
Effizienzklasse
A+
Endenergiebedarf
31,80 kWh/(m²·a)
Weitere Energiedaten
Heizungsart
Luft-/Wasser-Wärmepumpe
Details
Objektbeschreibung
Herzlich willkommen in Ihrem neuen Zuhause in Herten/Westerholt!
Diese geräumige Dachgeschosswohnung zur Miete bietet auf ca. 135 m² Wohnfläche viel Platz für Ihre Wohnträume. Sie überzeugt durch ihre Lage in einem ruhigen und dennoch gut angebundenen Wohngebiet mit Nähe zum Stadtzentrum und zur umliegenden...
Weitere Informationen
Stichworte
vermietbare Fläche: 135,00 m², Anzahl der Schlafzimmer: 2, Anzahl der Badezimmer: 1, Anzahl Terrassen: 1
Anbieter der Immobilie
Online-ID: 2m6ln52
Referenznummer: M 2490_4
Finde Angebote wie dieses
Hier geht es zu unserem Impressum, den Allgemeinen Geschäftsbedingungen, den Hinweisen zum Datenschutz und nutzungsbasierter Online-Werbung.