
Clemens Rosendahl Immobilienservice
Herr Clemens Rosendahl
091 ···
Nr. anzeigenPreise & Kosten
Kaution
10000
Provision für Mieter
2,38 Grundmieten inklusive der gesetzlicher Mehrwertsteuer,
fällig bei Vertragsabschluss
Warum sehe ich diese Anzeige? – Du siehst diese Anzeige basierend auf Ihrer Navigation auf unserer Website und den Suchkriterien, die du verwendet hast.
Lage
Nürnberg - Stadtteil Sündersbühl
Idealer Standort für Logistik, Industrie, Handel und Handwerk bei ca. 750.000 Konsumenten ringsum. Gewerbegebiet im Herzen der Großstadt mit besten Verbindungen nach Fürth, Erlangen sowie ins Umland. Eigene Autobahnauffahrt zur A 73, ca. 20 Minuten zur A 3 und A 6. Mit der Buslinie 35 oder...
Die Ladenfläche
Baujahr
1972
Bezug
sofort
Erdgeschoss
Energie & Heizung
Warum sehe ich diese Anzeige? – Du siehst diese Anzeige basierend auf Ihrer Navigation auf unserer Website und den Suchkriterien, die du verwendet hast.
Energieausweis: für diesen Gebäudetyp nicht notwendig
Weitere Energiedaten
Energieträger
Öl
Heizungsart
Zentralheizung
Details
Objektbeschreibung
Hier können Sie erfolgreich durchstarten, Ideal für Produktpräsentation und Verkauf oder Büro. Praktisch aufgeteiltes Gewerbeanwesen mit zwei Zufahrten, Vorplatz für Kunden und mittig angeordnetem Gebäude mit verschiedenartigem Flächenangebot im Erdgeschoss und Souterrain.
Ausstattung
Die Aufteilung und Ausstattung der freien Fläche ist aktuell wie folgt:
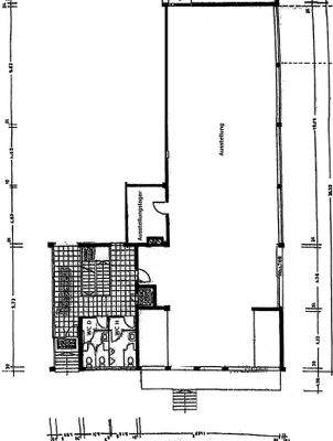
Erdgeschoss
heller freundlicher Eingangsbereich zur
Ausstellungshalle ca. 296,92 m²
mit großer und langer Fensterfront nach Osten und 2 Rolltoren,
Ausstellungslager ca. 15,87 m²
mit der Möglichkeit des...
Weitere Informationen
Sonstiges
In der Ausstellungshalle liegt tragkräftiger Betonestrich, eine Ölzentralheizung sorgt im gesamten Objekt für Wärme. Umbauten und Anpassungen sind nach Absprache umsetzbar. Auf den Freiflächen werden benötigte Stellplätze zugeordnet. Bezug nach Absprache möglich.
Anbieter der Immobilie
Clemens Rosendahl Immobilienservice
Am Behlanger 70, 90482 Nürnberg
Online-ID: 2m6lr5j
Finde Angebote wie dieses
Hier geht es zu unserem Impressum, den Allgemeinen Geschäftsbedingungen, den Hinweisen zum Datenschutz und nutzungsbasierter Online-Werbung.