
IAD Immobilien Agentur Deutschland GmbH
Herr Dieter Zorn
+49 ···
Nr. anzeigenPreise & Kosten
Kaution
3,00 3 MM
Provision für Mieter
3,0 Nettomonatsmieten zzgl. 19 % MwSt. Die Provision errechnet sich aus dem Kaufpreis. Weitere Informationen siehe Provisionshinweis.
Warum sehe ich diese Anzeige? – Du siehst diese Anzeige basierend auf Ihrer Navigation auf unserer Website und den Suchkriterien, die du verwendet hast.
Lage
Lage
Die Immobilie liegt im beliebten Münchner Stadtteil Obermenzing, unweit des Nymphenburger Schlossparks und mit direkter Anbindung an Pasing.
Die Lage verbindet repräsentatives Umfeld mit guter Verkehrsanbindung:
Bus- und S-Bahnanschluss (S2 Obermenzing / Pasing) in wenigen Minuten...
Büro-/Praxisfläche
Kategorie
Praxisfläche
Baujahr
2011
Details
Objektbeschreibung
Objektbeschreibung
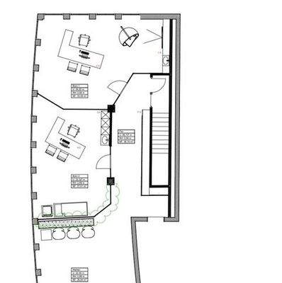
Zur Vermietung stehen gepflegte und helle Büro- bzw. Praxisflächen in sehr guter Lage von München-Obermenzing.
Das Objekt erstreckt sich über zwei Ebenen (Erdgeschoss und Obergeschoss) mit insgesamt ca. 230 m² Nutzfläche. Beide Etagen sind derzeit intern verbunden, verfügen jedoch über separate...
Ausstattung
Ausstattung
Glasfaseranschluss / Highspeed-Internet
gepflegter Bodenbelag und helle Raumgestaltung
Glasabtrennungen für flexible Büro- oder Praxisstrukturen
getrennte WCs (Damen/Herren)
Küche / Teeküche vorhanden
Parkmöglichkeiten direkt am Haus
EG und OG separat...
Preisinformation
2 Stellplätze
3 Tiefgaragenstellplätze
Weitere Informationen
Provisionshinweis
3,0 Nettomonatsmieten zzgl. 19 % MwSt. Die Provision errechnet sich aus dem Kaufpreis. Für ein Exposé und weitere Informationen zum Objekt sowie einen Besichtigungstermin füllen Sie bitte die nachfolgenden Angaben im Kontaktformular aus:- vollständiger Name/Anschrift- E-Mail-Adresse-...
Anbieter der Immobilie
IAD Immobilien Agentur Deutschland GmbH
Untere Bühlstraße 5, 91338 Igensdorf
Online-ID: 2m6pc5l
Referenznummer: TS-DZ0120/4
Finde Angebote wie dieses
Hier geht es zu unserem Impressum, den Allgemeinen Geschäftsbedingungen, den Hinweisen zum Datenschutz und nutzungsbasierter Online-Werbung.