
ohne-makler.net - Immobilien selbst vermarkten
Privat vom Eigentümer
Kontaktiere den Anbieter schriftlich, es ist keine Telefonnummer hinterlegt.
Preise & Kosten
Provision für Käufer
provisionsfrei
Abschreibung/Anlage
Denkmalschutz-Afa
Lage
Das Haus befindet sich in der historischen Altstadt Gelnhausen in besonders ruhiger Lage. Die Umgebung ist geprägt von Fachwerkhäusern und einer gewachsenen Infrastruktur. In nur 3 Minuten zu Fuß erreicht man den Ober- und Untermarkt. Einkaufsmöglichkeiten, Schulen, Ärzte und öffentliche Verkehrsmittel sind ebenfalls schnell...
Das Haus
Kategorie
Stadthaus
Baujahr
1890
Bezug
nach Absprache
Derzeitige Nutzung
vermietet
Energie & Heizung
Warum sehe ich diese Anzeige? – Du siehst diese Anzeige basierend auf Ihrer Navigation auf unserer Website und den Suchkriterien, die du verwendet hast.
Energieausweis: für diesen Gebäudetyp nicht notwendig
Weitere Energiedaten
Energieträger
Öl
Heizungsart
offener Kamin, Zentralheizung
Details
Objektbeschreibung
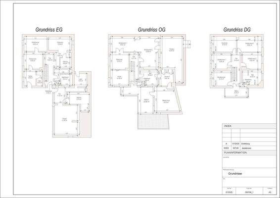
Dieses denkmalgeschützte Altstadthaus aus dem Jahr 1890 verbindet historischen Charme mit modernem Wohnkomfort. Auf einem Grundstück von rund 405 m² erstreckt sich die Immobilie über drei Etagen mit 273 m² Wohnfläche und insgesamt 10 Zimmern.
Neben der Hauptwohnung über 2 Etagen bietet das Haus eine separate...
Ausstattung
Balkon, Terrasse, Garten, Keller, Vollbad, Duschbad, Einbauküche, Kamin, Parkett, Fliesen
Bemerkungen:
Die Sanierung erfolgte mit großer Wertschätzung für die historische Substanz und einem feinem Blick für Details. Der ursprüngliche Charakter blieb gewahrt und wurde durch hochwertige Akzente bereichert.
Preisinformation
2 Stellplätze
2 Garagenstellplätze
Weitere Informationen
Sonstiges
Heizungsart: Zentralheizung
Energieträger: Öl
Provisionsfrei - direkt vom Eigentümer
Besichtigungstermine nach Vereinbarung
ohne-makler (OM) ist weder Anbieter noch Vermittler der Immobilie. OM betreibt eine Plattform für Immobilieneigentümer, die unter anderem die gleichzeitige...
Anbieter der Immobilie
ohne-makler.net - Immobilien selbst vermarkten
Humboldtstr. 25 A, 21509 Glinde
Privat vom Eigentümer
Dein Ansprechpartner
Kontaktiere den Anbieter schriftlich, es ist keine Telefonnummer hinterlegt.
Online-ID: 2m6qb5w
Referenznummer: 410237
Finde Angebote wie dieses
Hier geht es zu unserem Impressum, den Allgemeinen Geschäftsbedingungen, den Hinweisen zum Datenschutz und nutzungsbasierter Online-Werbung.