

bauma Immo UG
Herrn Guilherme-José Fleckner
043 ···
Nr. anzeigenPreise & Kosten
Provision für Käufer
provisionsfrei
Lage
Das Landgrundstück befindet sich im Ort Araçatiba auf der Insel Ilha Grande.
Die Insel "Ilha Grande" an der Küste von Rio de Janeiro, Brasilien, ist Teil eines Welterbe-Gebiets der UNESCO. Es handelt sich um ein gemischtes Welterbe ("mixed site") - d.h. das Gebiet besitzt sowohl kultur- als auch naturbezogene...
Das Haus
Baujahr
2010
Bezug
Sofort
Energie & Heizung
Warum sehe ich diese Anzeige? – Du siehst diese Anzeige basierend auf Ihrer Navigation auf unserer Website und den Suchkriterien, die du verwendet hast.
Energieausweis: für diesen Gebäudetyp nicht notwendig
Details
Objektbeschreibung
Das Anwesen "Sítio da Banana-Roxa" befindet sich im ruhigen Ort Araçatiba auf Ilha Grande, eingebettet in den atlantischen Regenwald, bietet die Immobilie einen harmonischen Rückzugsort mit Meerblick, frischer Luft und üppiger Natur.
Das rund 5.300 m² große Grundstück liegt auf sanft gestuftem Gelände. Insgesamt sind...
Ausstattung
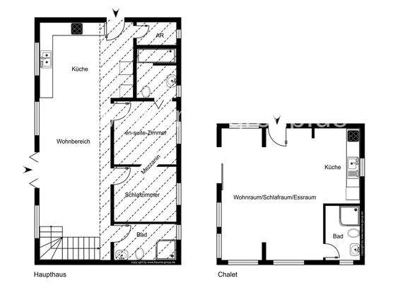
Haupthaus mit ca. 175m² Wohnfläche:
- Großes Wohnbereich
- 2 Schlafzimmer, 2 Badezimmer
- Offene Küche
- Mezzanin/Zwischengeschoss
- Hochwertige Bauweise mit Edelhölzern.
- Fenster und Türen aus Angelim-Holz, mit Insektenschutznetzen.
- Große, überdachte Veranda mit Spüle und Arbeitsfläche, Holzofen...
Weitere Informationen
Sonstiges
Nutzflächen mit insgesamt ca. 86m²:
- Waschküche
- Werkstatt
- Generatorhaus
Das Gelände ist vielfältig bepflanzt:
- Obstbäume wie Zimapfel, Jabuticaba, Acerola, Granatapfel, Limette, Kokos, Brotfrucht, Mango und mehrere Bananensorten. Eine Gemüsefläche mit Maniok, Taro und saisonalen Pflanzen...
Anbieter der Immobilie
bauma Immo UG
Zum Klützenberg 27, 23738 Lensahn

Online-ID: 2m6qh5d
Referenznummer: BR106
Finde Angebote wie dieses
Hier geht es zu unserem Impressum, den Allgemeinen Geschäftsbedingungen, den Hinweisen zum Datenschutz und nutzungsbasierter Online-Werbung.