

Dübbelde Immobilien GbR
Frau und Herr Mareike Leuchters & Hendrik Dübbelde
049 ···
Nr. anzeigenPreise & Kosten
Provision für Käufer
provisionsfrei
Lage
Die Immobilie befindet sich in Elisabethfehn, einem Ortsteil der Gemeinde Barßel. Der Elisabethfehnkanal ist heute bei Sportbootfahren sehr beliebt. Wo früher der Torf aus den Moorkolonien abtransportiert wurde, überwiegt heute der große Freizeitwert. Die Ortschaft Elisabethfehn erstreckt sich über mehrere Kilometer entlang...
Das Haus
Baujahr
1964
Bezug
ab sofort
Energie & Heizung
Warum sehe ich diese Anzeige? – Du siehst diese Anzeige basierend auf Ihrer Navigation auf unserer Website und den Suchkriterien, die du verwendet hast.
Energieausweistyp
Bedarfsausweis
Gebäudetyp
Wohngebäude
Baujahr laut Energieausweis
1964
Wesentliche Energieträger
GAS
Gültigkeit
05.10.2024 bis 04.10.2034
Effizienzklasse
H
Endenergiebedarf
331,00 kWh/(m²·a)
Weitere Energiedaten
Haustyp
Massivhaus
Energieträger
Gas
Heizungsart
offener Kamin, Zentralheizung
Details
Objektbeschreibung
Dieses beeindruckende Wohn- und Geschäftshaus in Elisabethfehn wurde 1964 erbaut und bietet auf einer großzügigen Wohnfläche von ca. 372 m² eine perfekte Kombination aus Wohn- und zusätzlichen Gewerbeflächen. Das Gebäude befindet sich auf einem ca. 3.156 m² großen Grundstück und umfasst eine Gewerbeeinheit mit Kellerbereich...
Ausstattung
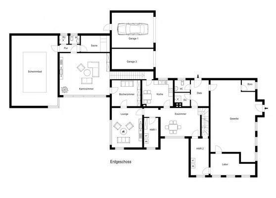
In der Immobilie finden Sie folgende Räumlichkeiten vor:
Geschäftsräume:
ein Gewerbe, ein Labor, ein Büro, ein Hauswirtschaftsraum sowie Kellerräume der Geschäftsräume
Wohneinheit:
Erdgeschoss:
eine Diele, ein WC, eine Dusche, ein Esszimmer, eine Küche, ein Hauswirtschaftsraum, eine Lounge, ein...
Weitere Informationen
Sonstiges
- Das ausführliche Exposé mit weiteren Fotos, Unterlagen und Informationen zu der Immobilie erhalten Sie auf Anfrage.
- Die in diesem Exposé enthaltenen Angaben, Abmessungen und Preisangaben beruhen auf Angaben des Verkäufers. Das Maklerbüro Dübbelde Immobilien GbR übernimmt hierfür keine Haftung. Dasselbe...
Anbieter der Immobilie

Online-ID: 2m6qs52
Referenznummer: 037-5404
Finde Angebote wie dieses
Hier geht es zu unserem Impressum, den Allgemeinen Geschäftsbedingungen, den Hinweisen zum Datenschutz und nutzungsbasierter Online-Werbung.