

Profimo Concept GmbH
Herrn Fabian Hennig
023 ···
Nr. anzeigenPreise & Kosten
Provision für Käufer
3,57 % inkl. MwSt.
Lage
Das Mehrfamilienhaus befindet sich in einem ruhigen Stadtteil "Zurstraße" und gehört zu Breckerfeld, einer charmanten Stadt im Ennepe-Ruhr-Kreis. Der Stadtteil ist geprägt von begrünten Straßen und bietet eine angenehme Wohnatmosphäre. Die unmittelbare Umgebung zeichnet sich durch eine gute Infrastruktur aus, mit...
Das Haus
Kategorie
Mehrfamilienhaus
Baujahr
1965
Bezug
sofort
Energie & Heizung
Warum sehe ich diese Anzeige? – Du siehst diese Anzeige basierend auf Ihrer Navigation auf unserer Website und den Suchkriterien, die du verwendet hast.
Energieausweistyp
Bedarfsausweis
Gebäudetyp
Wohngebäude
Baujahr laut Energieausweis
1965
Wesentliche Energieträger
Wärmepumpe
Gültigkeit
21.09.2025 bis 20.05.2034
Endenergiebedarf
253,47 kWh/(m²·a)
Weitere Energiedaten
Haustyp
Massivhaus
Heizungsart
Luft-/Wasser-Wärmepumpe, offener Kamin, Zentralheizung
Details
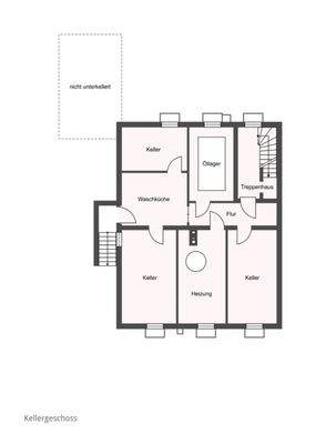
Objektbeschreibung
Sie sind auf der Suche nach einem Mehrfamilienhaus für die ganze Familie?
Dann haben wir hier genau das Richtige für Sie.
Bei dem hier angebotenen Mehrfamilienhaus aus dem Jahr 1965 handelt es sich um insgesamt 3 Wohnungen in beliebter Wohnlage.
Die Erdgeschosswohnung umfasst eine Gesamtwohnfläche von ca. 94...
Preisinformation
2 Stellplätze
1 Garagenstellplatz
Weitere Informationen
Stichworte
Garage vorhanden, Stellplatz vorhanden, Anzahl der Schlafzimmer: 6, Anzahl der Badezimmer: 3, Anzahl Balkone: 1, Anzahl Terrassen: 1
Anbieter der Immobilie

Profimo Concept GmbH
Bergfeld 2, 58553 Halver

Online-ID: 2m6rs5w
Referenznummer: 279#iSeP00
Finde Angebote wie dieses
Hier geht es zu unserem Impressum, den Allgemeinen Geschäftsbedingungen, den Hinweisen zum Datenschutz und nutzungsbasierter Online-Werbung.