
LIPSIA-Fachberatungsbüro
Herr Michael Dornheim
017 ···
Nr. anzeigenPreise & Kosten
Provision für Käufer
7,14% inkl. MWSt. bezogen NUR auf den Grundstückspreis
Lage
Mölkau ist ein Stadtteil im Osten von Leipzig. Der Stadtteil ist 5,3 km² groß, hat 6.200 Einwohner. Mölkau grenzt im Westen an den Ortsteil Anger-Crottendorf, im Nord-Westen an Sellerhausen/Stünz, im Norden an Paunsdorf und Engelsdorf, im Osten an Baalsdorf und im Süden an Holzhausen und Stötteritz. Mölkau erreicht man mit...
Das Haus
Kategorie
Bungalow
Energie & Heizung
Warum sehe ich diese Anzeige? – Du siehst diese Anzeige basierend auf Ihrer Navigation auf unserer Website und den Suchkriterien, die du verwendet hast.
Energieausweis: für diesen Gebäudetyp nicht notwendig
Weitere Energiedaten
Heizungsart
Fußbodenheizung, Luft-/Wasser-Wärmepumpe, Zentralheizung
Details
Objektbeschreibung
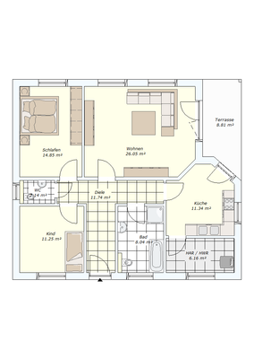
Das junge Paar mit einem Kind oder die „Silver-Ager“ mit dem Wunsch nach einem Gäste-Zimmer oder zwei Singles mit Bedarf an einem Arbeits-Zimmer – die Zielgruppe für unseren zweitkleinsten Bungalow ist sehr vielfältig. Aber alle eint das Ziel: Bloss keine winzigen Zimmer! Dem tragen wir mit diesem 100-qm-Entwurf Rechnung...
Weitere Informationen
Sonstiges
Gern stellen wir Ihnen in einem persönlichen Gespräch weitere Bauplätze und alternative Hausplanungen auch an anderen Standorten vor. Über 2 Termin-Vorschläge (einer passt dann sicher auch bei uns) freuen wir uns!
Bitte haben Sie Verständnis, dass wir Anfragen nur bei vollständigen Angaben (mind. Name...
Dokumente
Anbieter der Immobilie
Online-ID: 2m6rt5r
Referenznummer: Z 166
Finde Angebote wie dieses
Hier geht es zu unserem Impressum, den Allgemeinen Geschäftsbedingungen, den Hinweisen zum Datenschutz und nutzungsbasierter Online-Werbung.