
Ranke Immobilien Verwaltung GmbH
Herr Bernhard Ranke
+49 ···
Nr. anzeigenPreise & Kosten
Kaution
3 netto Monatsmieten
Provision für Mieter
provisionsfrei
Warum sehe ich diese Anzeige? – Du siehst diese Anzeige basierend auf Ihrer Navigation auf unserer Website und den Suchkriterien, die du verwendet hast.
Lage
Karlsfeld ist eine attraktive Gemeinde nordwestlich von München und erfreut sich wegen ihrer hervorragenden Lage und Lebensqualität großer Beliebtheit. Die Gemeinde verbindet den Charme eines ruhigen Vororts mit der Nähe zur Großstadt. Karlsfeld bietet eine ausgezeichnete Infrastruktur, ein starkes Wirtschaftsnetzwerk und...
Die Industriefläche
Baujahr
1992
Bezug
sofort
Energie & Heizung
Warum sehe ich diese Anzeige? – Du siehst diese Anzeige basierend auf Ihrer Navigation auf unserer Website und den Suchkriterien, die du verwendet hast.
Weitere Energiedaten
Energieträger
Gas
Heizungsart
Luft-/Wasser-Wärmepumpe, Zentralheizung
Details
Objektbeschreibung
Diese gepflegte Halle/Industrieimmobilie, Baujahr 1992, bietet eine Gesamtfläche von 3.219,83 m², die vollständig als Lager- oder Produktionsfläche nutzbar ist. Sie erstreckt sich über vier Etagen und ist ab dem 01.01.2026 verfügbar. Die Immobilie verfügt über eine Zentralheizung und wird mit Gas sowie einer...
Preisinformation
30 Stellplätze, Miete je: 25,00 EUR
Weitere Informationen
Sonstiges
8,40€ / m² Miete
2,40€ / m² NK
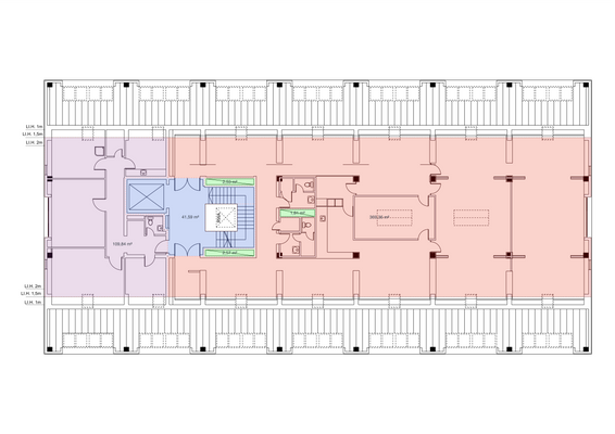
Flächenberechnung: Mietfläche incl. Nebenflächen
EG ges. = 787,09 m²
EG F1 (orange)= 393,3 m²
EG F2 (rot) = 213,18 m²
EG F2 (violett) = 180,57 m²
1.OG ges. = 956,64 m²
1.OG F1 (orange)= 234,18 m²
1.OG F2 (rot) = 346,70 m²
1.OG F3...
Anbieter der Immobilie
Ranke Immobilien Verwaltung GmbH
Kistlerhofstraße 170, 81379 München
Online-ID: 2m6sy5w
Referenznummer: KFD - G - Industrie
Finde Angebote wie dieses
Hier geht es zu unserem Impressum, den Allgemeinen Geschäftsbedingungen, den Hinweisen zum Datenschutz und nutzungsbasierter Online-Werbung.