Version: 8.24.0Navigation überspringen
8 €
193 m² Lagerfläche
Immowelt logo

Halle/Industriefläche zur Miete
8 €
193 m² Lagerfläche

Der ideale Geschäftsstandort zur Miete! Alles unter einem Dach Büro, Geschäfts und Lagerfläche in Grödig

Willkommen in einer einzigartigen Gewerbeimmobilie im malerischen Grödig, Salzburg!

Diese attraktive Industrie- und Gewerbefläche bietet Ihnen nicht nur eine hervorragende Lage, sondern auch ein ideales Umfeld für Ihr Unternehmen. Hiermit eröffnet sich Ihnen die Möglichkeit, in einer der gefragtesten Regionen Österreichs Fuß zu fassen.

Das Herzstück dieser Immobilie ist zweifelsohne der großzügige Garten, der Ihnen nicht nur zusätzlichen Raum für Erholung und Pausen bietet, sondern auch eine hervorragende Gelegenheit, Ihre Geschäftsideen im Freien zu entfalten. Stellen Sie sich vor, wie Ihre Mitarbeiter in der Mittagspause die frische Luft genießen oder Sie bei einem Meeting im Freien neue kreative Impulse sammeln.

Die Verkehrsanbindung könnte nicht besser sein. Die Nähe zu öffentlichen Verkehrsmitteln, insbesondere zu den Buslinien, sorgt dafür, dass Ihre Mitarbeiter und Kunden stets unkompliziert zu Ihnen gelangen. Zudem ist der Autobahnanschluss nur wenige Minuten entfernt, was Ihnen und Ihren Geschäftspartnern eine schnelle Erreichbarkeit garantiert.

Nutzen Sie diese einmalige Gelegenheit, um Ihre Geschäftsideen in einer dynamischen Umgebung zu verwirklichen. Die Kombination aus einer erstklassigen Lage, der hervorragenden Infrastruktur und dem charmanten Garten macht diese Immobilie zu einem perfekten Standort für Unternehmen, die Wert auf ein angenehmes Arbeitsumfeld legen.

Zögern Sie nicht, sich diese Chance nicht entgehen zu lassen. Setzen Sie sich noch heute mit uns in Verbindung und vereinbaren Sie einen Besichtigungstermin. Ihr neues Geschäftszuhause in Grödig wartet bereits auf Sie!

Der Vermittler ist als Doppelmakler tätig.

Infrastruktur / Entfernungen

Gesundheit
Arzt <2.500m
Apotheke <500m
Klinik <5.000m
Krankenhaus <6.000m

Kinder & Schulen
Schule <1.000m
Kindergarten <2.000m
Universität <3.500m
Höhere Schule <2.000m

Nahversorgung
Supermarkt <500m
Bäckerei <500m
Einkaufszentrum <5.500m

Sonstige
Bank <500m
Geldautomat <500m
Post <1.000m
Polizei <1.500m

Verkehr
Bus <500m
Autobahnanschluss <1.000m
Bahnhof <4.000m
Flughafen <6.500m

Angaben Entfernung Luftlinie / Quelle: OpenStreetMap

Merkmale

  • frei ab sofort

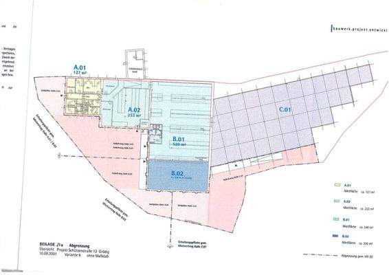
Grundrisse

Grundrisse
1 / 1

Realisiere Dein Projekt

Bausubstanz und Energie

Der Anbieter hat keine Informationen zu Energieverbrauch oder Zustand der Immobilie bereit gestellt.
Immowelt logo

Mietkosten

Nettokaltmiete zzgl. Betriebskosten
8 €
Provision für Mieter
3 Bruttomonatsmieten zzgl. 20% USt.
Kaution
keine Angabe
Weitere Preisinformationen
Nettokaltmiete: 8,00 EUR

Lage

address-icon
Grödig (5082)
Diese attraktive Gewerbeimmobilie in 5082 Grödig, Salzburg, überzeugt durch ihre hervorragende Lage. Umgeben von einer ausgezeichneten Infrastruktur finden Sie in unmittelbarer Nähe eine Apotheke, eine Schule, Supermärkte, eine Bäckerei, Banken sowie Geldautomaten und die Post. Die Anbindung an den öffentlichen Verkehr ist optimal, mit einer Bushaltestelle in der Nähe, während der Autobahnanschluss schnellen Zugang zu den umliegenden Regionen bietet. Ideal für Ihr Unternehmen!

Weitere Informationen

Sonstiges Flexible Preisgestaltung je nach Größe. Lagerflächen ab 6 Euro, Büro und Verkaufsflächen ab 8 Euro pro m².
PKW oder LKW Stellplätze können individuell nach Ihrem Bedarf zur Verfügung gestellt werden.

Flächen sind bereits ab 20 m² anmietbar. Stichworte Lagerfläche: 193,00 m², Bürofläche: 187,00 m², Gartenfläche: 8,00 m², Bundesland: Salzburg

Weitere Services

Lust auf eine Besichtigung?
Eine Frage zur Immobilie?
Nachricht hinzufügen
Mit der Nutzung der oben angegebenen Telefonnummer oder durch Klicken auf „Kontaktieren“ akzeptierst Du die Allgemeinen Nutzungsbedingungen, denen Du jederzeit widersprechen kannst. Weitere Informationen zum Datenschutz

Über den Anbieter

Alpenstraße 18| Stiege 2 | 1OG | Top 4, 5020 SALZBURG
partner badge
Partnerschaft
Herr Mustafa KorkmazDein Kontakt
Online-ID: 2m6tu5p
Referenznummer: OBGC20251213223334625bc0fe879f6
MK Immobilientreuhänder
Nachricht hinzufügen
Mit der Nutzung der oben angegebenen Telefonnummer oder durch Klicken auf „Kontaktieren“ akzeptierst Du die Allgemeinen Nutzungsbedingungen, denen Du jederzeit widersprechen kannst. Weitere Informationen zum Datenschutz
Wie zufrieden bist du mit dieser Seite (nicht mit der Immobilie selbst)?