
fundamentis GmbH
Marco Boser
085 ···
Nr. anzeigenPreise & Kosten
in Warmmiete enthalten
Kaution
2.850 €
Warum sehe ich diese Anzeige? – Du siehst diese Anzeige basierend auf Ihrer Navigation auf unserer Website und den Suchkriterien, die du verwendet hast.
Lage
WALDKIRCHEN - HISTORISCH GEWACHSEN, MODERN GEPRÄGT
Eingebettet zwischen dem Nationalpark Bayerischer Wald und der Dreiflüssestadt Passau liegt der Luftkurort Waldkirchen in einer der schönsten Landschaften Niederbayerns. Mittelalterliche Hausfassaden und die imposante Ringmauer bezeugen Waldkirchens einstige Stellung...
Die Wohnung
Wohnungslage
Erdgeschoss
Bezug
nach Vereinbarung
Wohnanlage
Energie & Heizung
Warum sehe ich diese Anzeige? – Du siehst diese Anzeige basierend auf Ihrer Navigation auf unserer Website und den Suchkriterien, die du verwendet hast.
Energieausweistyp
Bedarfsausweis
Gebäudetyp
Wohngebäude
Gültigkeit
bis 28.01.2030
Effizienzklasse
A
Endenergiebedarf
44,20 kWh/(m²·a)
Details
Objektbeschreibung
ARCHITEKTUR - INDIVIDUELL
Attraktiv, individuell und qualitativ hochwertig - das ist unser Anspruch für den LICHTRAUM WALDKIRCHEN. Eine Vielzahl verschiedener Grundrisse mit unterschiedlichen Wohnungsgrößen machen den LICHTRAUM WALDKIRCHEN zu einem modernen, abwechslungsreichen Wohn- und Lebensraum. Verwirklicht...
Ausstattung
FAKTEN UND HIGHLIGHTS
- Kleine Wohnanlage mit anspruchsvoller Architektur
- KfW-Effizienzhaus 55
- Ziegelmassivbauweise
- Aufzüge von Keller bis Penthäuser
- Hochwertige Küche
- HARO Designboden (Bergeiche)
- Große Fensterflächen / Helle Räume
- Großzügige Balkone / Terrassen mit Weitblick
-...
Preisinformation
1 Stellplatz, Miete: 75,00 EUR
Weitere Informationen
Stichworte
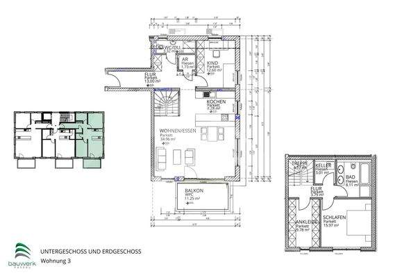
Garage vorhanden, Stellplatz vorhanden, Anzahl der Schlafzimmer: 2, Anzahl der Badezimmer: 1, Anzahl Balkone: 1, Balkon-Terrassen-Fläche: 11,25 m², Bundesland: Bayern, 3 Etagen
Anbieter der Immobilie
fundamentis GmbH
Alte Straße 88, 94034 Passau
Online-ID: 2m6w85s
Referenznummer: LICHTRAUM-M-H29-3
Finde Angebote wie dieses
Hier geht es zu unserem Impressum, den Allgemeinen Geschäftsbedingungen, den Hinweisen zum Datenschutz und nutzungsbasierter Online-Werbung.