

Kern-Haus AG Niederlassung Dresden
Frau Nicole Ulbricht
035 ···
Nr. anzeigenPreise & Kosten
Provision für Käufer
provisionsfrei
Lage
In ruhiger und familienfreundlicher Lage von 01458 Medingen erwartet Sie dieses attraktive Teilbaugrundstück mit einer Größe von ca. 415 m². Mit einer Grundstücksbreite von etwa 20 Metern und einer Tiefe von rund 20 Metern bietet die Fläche sehr gute Voraussetzungen für die Verwirklichung individueller Wohnträume.
Das...
Das Haus
Kategorie
Einfamilienhaus
Baujahr
2026
Energie & Heizung
Warum sehe ich diese Anzeige? – Du siehst diese Anzeige basierend auf Ihrer Navigation auf unserer Website und den Suchkriterien, die du verwendet hast.
Energieausweistyp
Bedarfsausweis
Gebäudetyp
Wohngebäude
Effizienzklasse
A+
Endenergiebedarf
13,96 kWh/(m²·a)
Weitere Energiedaten
Heizungsart
Fußbodenheizung, Zentralheizung
Details
Objektbeschreibung
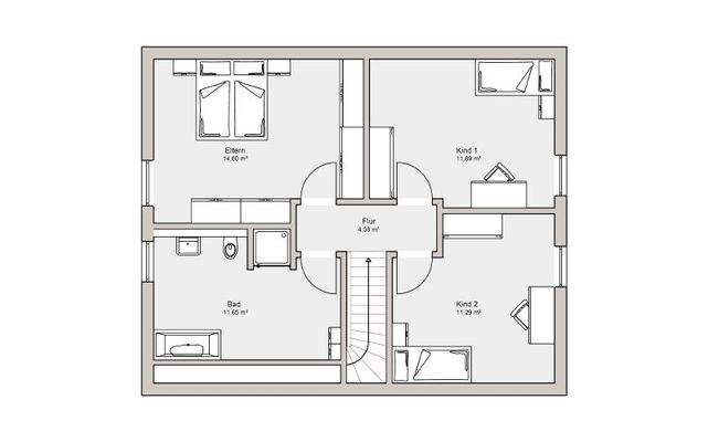
Lassen Sie sich begeistern von 128 m² im Architektenhaus Jaro. Der Grundriss überzeugt in jeder Hinsicht, denn im Erdgeschoss erwartet Sie ein großzügiger, offener Wohnbereich mit Essbereich und einer offenen Küche. Hier werden Wohnträume wahr, denn für jedes Familienmitglied findet sich hier genug Platz für das wahre Leben...
Ausstattung
4 Zimmer, offene Küche, Diele, Flur, Bad, WC, Hauswirtschaftsraum
Das gezeigte Traumhaus im Überblick:
+ Massivhaus im Sinne der Ausstattungsbeschreibung "Nestbau"
+ Energieeffizienzklasse A+
+ + Zukunftsorientierte Energieausstattung in Form einer Luft-Wasser-Wärmepumpe und Fußbodenheizung
Beste...
Weitere Informationen
Sonstiges
Kern-Haus
Kern-Haus baut individuelle und massive Architektenhäuser zu einem attraktiven Preis-Leistungs-Verhältnis - und das bereits mit einer Erfahrung seit 1980. Die Kern-Haus AG ist ein deutscher, inhabergeführter Massivhausanbieter mit Sitz im rheinland-pfälzischen Ransbach-Baumbach. Kern-Haus setzt...
Anbieter der Immobilie
Kern-Haus AG Niederlassung Dresden
Am Sandberg 2, 01468 Moritzburg

Online-ID: 2m6ws5q
Referenznummer: WDD 10418
Finde Angebote wie dieses
Hier geht es zu unserem Impressum, den Allgemeinen Geschäftsbedingungen, den Hinweisen zum Datenschutz und nutzungsbasierter Online-Werbung.