
BEST PLACE Immobilien GmbH & Co. KG
Ihr Best Place Vertriebsteam München
004 ···
Nr. anzeigenDieses Angebot ist Teil des Neubauprojekts
Green Studios Schwabing
Preise & Kosten
Provision für Käufer
provisionsfrei
Lage
München vereint Tradition und Coolness auf einzigartige Weise: Eine historische Altstadt mit urigen Biergärten finden Sie hier genauso wie hippe Bars und eine vibrierende Kulturszene. Die hohe Lebensqualität und renommierte Universitäten ziehen Studierende aus aller Welt an. Dank seiner lebendigen Atmosphäre und vielfältigen...
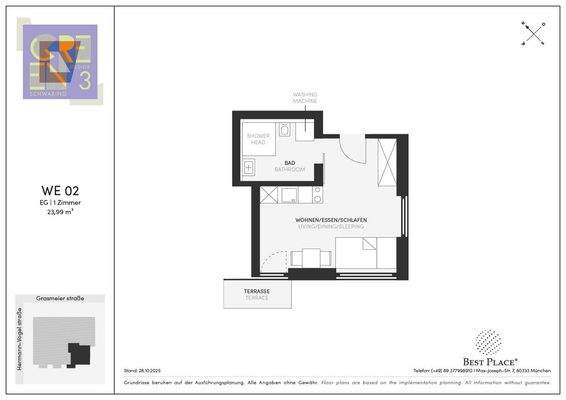
Die Wohnung
Wohnungslage
Erdgeschoss
Wohnanlage
Das Neubauprojekt
Energie & Heizung
Warum sehe ich diese Anzeige? – Du siehst diese Anzeige basierend auf Ihrer Navigation auf unserer Website und den Suchkriterien, die du verwendet hast.
Energieausweistyp
Bedarfsausweis
Gebäudetyp
Wohngebäude
Baujahr laut Energieausweis
2025
Wesentliche Energieträger
ELECTRICITY
Gültigkeit
bis 28.10.2035
Effizienzklasse
A
Endenergiebedarf
8,70 kWh/(m²·a)
Weitere Energiedaten
Energieträger
Elektro
Details
Objektbeschreibung
Bei diesem 1-Zimmer-Studenten-Apartment wurde an alles gedacht: Das effiziente 1-Zimmer-Konzept bietet ausreichend Raum zum Schlafen, Wohnen und Arbeiten sowie eine Kochzeile mit Essplatz. Ein Privatgarten lädt zu erholsamen Stunden an der frischen Luft ein.
Hochwertige Bodenbeläge in den Wohnräumen ergänzen...
Ausstattung
. Effizient geplantes Studierenden-Apartment am Englischen Garten
. Privatgarten
. Kochzeile
. Markensanitär
. Feinsteinzeugfliesen im Format 60x60
. Fitnessraum, HWR mit Waschmaschinen/Trocknern, Gemeinschaftsküche
. 5 Kfz-Stellplätze (nicht im Preis enthalten)
. Fahrradkeller
. Möbelpaket...
Weitere Informationen
Stichworte
vermietbare Fläche: 31,06 m², Bundesland: Bayern, 4 Etagen, Wohnungsnr.: WE 02
Anbieter der Immobilie
Online-ID: 2m6xx55
Referenznummer: GRAS-WE02
Finde Angebote wie dieses
Hier geht es zu unserem Impressum, den Allgemeinen Geschäftsbedingungen, den Hinweisen zum Datenschutz und nutzungsbasierter Online-Werbung.