
SPECHT IMMOBILIEN GmbH
Herr Gabriel Malki
017 ···
Nr. anzeigenPreise & Kosten
Provision für Käufer
5,95 % des Grundstückspreises (470.000 €)
Die Käuferprovision beträgt 5,95 % des Grundstückspreises (470.000 €) inkl. der gesetzlichen MwSt. vom Kaufpreis und ist verdient und fällig bei Abschluss des notariellen Kaufvertrages.
Lage
Königstein im Taunus, eine idyllische Stadt im Hochtaunus, bietet eine perfekte Kombination aus ländlicher Ruhe und exzellenter Anbindung an die Großstadt. Die Innenstadt von Königstein erreichen Sie in nur ca. 5 Minuten mit dem Auto, dem Bus oder der Bahn. Hier finden Sie eine Vielzahl von Einkaufsmöglichkeiten, Ärzten sowie...
Das Haus
Kategorie
Doppelhaushälfte
Baujahr
2025
Bezug
Nach Absprache
Energie & Heizung
Warum sehe ich diese Anzeige? – Du siehst diese Anzeige basierend auf Ihrer Navigation auf unserer Website und den Suchkriterien, die du verwendet hast.
Weitere Energiedaten
Heizungsart
Luft-/Wasser-Wärmepumpe
Details
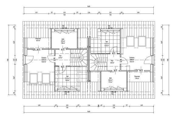
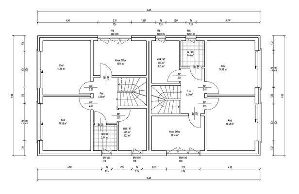
Objektbeschreibung
Einziehen, durchatmen, wohlfühlen - Willkommen in Ihrem neuen Zuhause!
Diese moderne Doppelhaushälfte vereint stilvolles Design, hochwertige Bauweise und durchdachten Wohnkomfort auf beeindruckende Weise. Auf ca. 145?m² Wohnfläche sowie ca. 35?m² Nutzfläche entsteht hier ein Ort, der nicht nur überzeugt, sondern...
Ausstattung
- Planung durch Architekten
- Energieausweis GEG
- Energiesparhaus massiv (Poroton)
- Unterbodenplattendämmung
- Wärmedämmverbundsystem
- Zwischensparrendämmung
- Massivtreppe z. B. Buche
- Doppelwärmepumpensystem
- Lüftungsanlage
- Fußbodenheizung, Einzelraumregelung
- 3-fach verglaste Fenster...
Weitere Informationen
Parken
2 Stellplätze, Kaufpreis je: 10.000,00 EUR
Sonstiges
Haftungsausschluss:
Alle in diesem Exposé enthaltenen Angaben, Darstellungen und Berechnungen stammen vom Verkäufer oder wurden von Dritten übernommen. Eine Haftung für die Richtigkeit, Vollständigkeit und Aktualität der Angaben kann nicht...
Anbieter der Immobilie
SPECHT IMMOBILIEN GmbH
Stuttgarter Str. 25, 60329 Frankfurt am Main
Online-ID: 2m72p5k
Referenznummer: 2490
Finde Angebote wie dieses
Hier geht es zu unserem Impressum, den Allgemeinen Geschäftsbedingungen, den Hinweisen zum Datenschutz und nutzungsbasierter Online-Werbung.