
DER IMMO TIP Vermittlung von Immobilien GmbH
Herr Christian Müller
004 ···
Nr. anzeigenPreise & Kosten
Provision für Käufer
provisionsfrei
Lage
Das Grundstück befindet sich in Dresden Omsewitz, nahe des Landschaftsschutzgebietes Zschonergrund mit dem Zschonergrundbad und der Zschonermühle.
Omsewitz ist ein idyllischer Stadtteil im Westen von Dresden, der durch seine ruhige und naturnahe Atmosphäre besticht. Der Stadtteil ist geprägt von einer Mischung aus...
Das Renditeobjekt
Kategorie
Wohnanlage
Baujahr
2026
Energie & Heizung
Warum sehe ich diese Anzeige? – Du siehst diese Anzeige basierend auf Ihrer Navigation auf unserer Website und den Suchkriterien, die du verwendet hast.
Energieausweis: für diesen Gebäudetyp nicht notwendig
Weitere Energiedaten
Heizungsart
Fußbodenheizung
Details
Objektbeschreibung
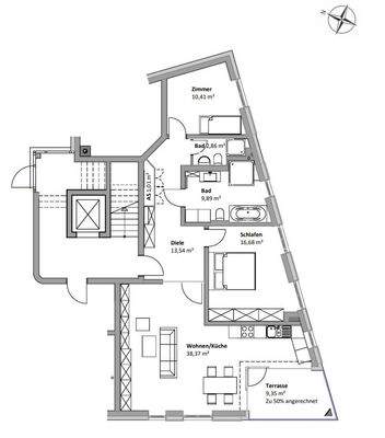
Zum Verkauf steht eine moderne ca. 97 m² große Dreizimmerwohnung mit Terrasse im Erdgeschoss eines geplanten dreigeschossigen Mehrfamilienhauses mit insgesamt sechs Wohneinheiten. Das Neubauprojekt entsteht auf einem ca. 980 m² großen Grundstück.
Alle Wohnungen verfügen über einen Balkon oder eine Terrasse mit einem...
Ausstattung
* jede Wohnung verfügt über einen Balkon oder Terrasse (teilweise mit eigener Grünfläche)
* Personenaufzug in alle Etagen
* Tageslichtbäder mit Wanne und Dusche
* Abstellraum für jede Wohnung im Dachgeschoss
* Wäschetrockenraum im Dachgeschoss
* Fahrradabstellhaus und Sitzecke auf dem Grundstück
Preisinformation
1 Stellplatz, Kaufpreis: 18.000,00 EUR
Soll-Mieteinnahmen pro Jahr: 15.785,28 EUR
Weitere Informationen
Sonstiges
Der Energieausweis befindet sich in Erstellung.
Hinweis: Fehlende Angaben zum Energieausweis gemäß Energiesparverordnung 2014 ( EnEV ) begründen sich durch Nichtangabepflicht bei Denkmalschutzobjekten, Grundstücken, nichtbeheizbaren Immobilien oder wurden bisher trotz Aufforderung gegenüber dem...
Anbieter der Immobilie
DER IMMO TIP Vermittlung von Immobilien GmbH
Semperstr. 1, 01069 Dresden
Online-ID: 2m74n5y
Referenznummer: 64484_10
Finde Angebote wie dieses
Hier geht es zu unserem Impressum, den Allgemeinen Geschäftsbedingungen, den Hinweisen zum Datenschutz und nutzungsbasierter Online-Werbung.