
Home Immobilien GmbH
Frau Karin Prast
003 ···
Nr. anzeigenPreise & Kosten
Provision für Käufer
4%
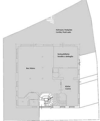
Die Ladenfläche
Kategorie
Laden
Baujahr
1956
Bezug
Ab sofort
Energie & Heizung
Warum sehe ich diese Anzeige? – Du siehst diese Anzeige basierend auf Ihrer Navigation auf unserer Website und den Suchkriterien, die du verwendet hast.
Weitere Energiedaten
Heizungsart
Etagenheizung, Fußbodenheizung
Details
Objektbeschreibung
Rf.Nr: F030
Gastronomie- und Geschäftsfläche im Zentrum von Bruneck
Diese Immobilie befindet sich in einer der meistfrequentierten Lagen von Bruneck und bietet ideale Voraussetzungen für Gastronomiekonzepte wie Restaurant, Bar, Café oder Feinkostbetrieb. Großzügige Fensterfronten, hohe Sichtbarkeit und die zentrale...
Weitere Informationen
Stichworte
Stellplatz vorhanden, Wohnfläche: 370,00 m², Nutzfläche: 370,00 m², Gesamtfläche: 370,00 m², 2 Etagen
Anbieter der Immobilie
Online-ID: 2m75n57
Referenznummer: F030-Q
Finde Angebote wie dieses
Hier geht es zu unserem Impressum, den Allgemeinen Geschäftsbedingungen, den Hinweisen zum Datenschutz und nutzungsbasierter Online-Werbung.