
Wohnungsgenossenschaft "Neues Leben" eG
Herr Marian Ziegler
039 ···
Nr. anzeigenPreise & Kosten
Warum sehe ich diese Anzeige? – Du siehst diese Anzeige basierend auf Ihrer Navigation auf unserer Website und den Suchkriterien, die du verwendet hast.
Lage
Das Wohngebiet ist nur einen Katzensprung vom Stadtzentrum mit seinem Boulevard entfernt. Supermärkte, Ärzte und auch der Bus- und Bahnhof sind in wenigen Gehminuten erreichbar. Der Wiesenpark lädt mit seinen Tiergehegen und einem großen Spielplatz zum Spazieren, Spielen und Verweilen ein. Eine Grund- und Sekundarschule...
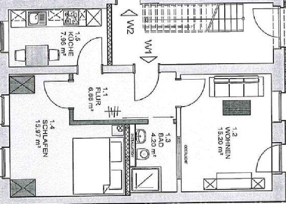
Die Wohnung
Wohnungslage
1. Geschoss
Bezug
01.01.2026
Wohnanlage
Energie & Heizung
Warum sehe ich diese Anzeige? – Du siehst diese Anzeige basierend auf Ihrer Navigation auf unserer Website und den Suchkriterien, die du verwendet hast.
Energieausweistyp
Bedarfsausweis
Gebäudetyp
Wohngebäude
Baujahr laut Energieausweis
1900
Wesentliche Energieträger
GAS
Gültigkeit
13.12.2019 bis 01.12.2029
Effizienzklasse
B
Endenergiebedarf
58,70 kWh/(m²·a)
Weitere Energiedaten
Energieträger
Gas
Heizungsart
Zentralheizung
Details
Objektbeschreibung
Diese gemütliche 2-Raum-Wohnung ist mit einer Fußbodenheizung ausgestattet. An das Wohnzimmer grenzt ein Balkon. Die Wohnung verfügt über eine gute Raumaufteilung, jedes Zimmer ist separat vom Flur aus begehbar, und ist mit einem Aufzug zu erreichen.
Weitere Informationen
Stichworte
Anzahl Balkone: 1, 3 Etagen, Wohnungsnr.: 17913/706/35/3
Sonstiges/Wohnen: seniorengerechtes Wohnen
Anbieter der Immobilie
Online-ID: 2m7665p
Referenznummer: 17913/706/35/3
Finde Angebote wie dieses
Hier geht es zu unserem Impressum, den Allgemeinen Geschäftsbedingungen, den Hinweisen zum Datenschutz und nutzungsbasierter Online-Werbung.