Wolf-Haus-GmbH - Frank Heil

Herrn Frank Heil

Modernes großes Niedrigenergie- Haus - mit großer Einliegerwohnung - Generationen wohnen - barrierefrei !!!

€ 798.000
Kaufpreis
460 m²
Wohnfläche ca.
10
Zimmer
700 m²
Grundstücksfl. ca.

Der Anbieter dieses Objekts hat gegenüber der AVIV Germany GmbH als Betreiber dieses Online-Marktplatzes erklärt, nicht als Unternehmer im Sinne des § 1 KSchG zu handeln. Die im Verbraucherschutzrecht der Union verankerten Verbraucherrechte (insbesondere Informationspflichten und Rücktritts- bzw. Widerrufsrechte) finden auf den Vertrag zwischen dem Anbieter des Objekts und Ihnen (dem Interessenten) keine Anwendung.

Provisionsfrei
Gewerblicher Anbieter

Der Anbieter dieses Objekts hat gegenüber der AVIV Germany GmbH als Betreiber dieses Online-Marktplatzes erklärt, als Unternehmer im Sinne des § 1 KSchG zu handeln.

AdresseStraße nicht freigegeben
61389 Schmitten 
(Niederreifenberg)
Auf Karte ansehen

Preise & Kosten

Kaufpreis € 798.000

Provision für Käufer

provisionsfrei

Lage

Oben im Taunus in bester Lage von Niederreifenberg ist dieses versteckte Schmuckstück gelegen.

Direkte Waldrandlage mit direktem Blick auf den gesamten Ort, im schönen Luftkurort, gelegen, dem Freizeitgebiet und der Naherholungsregion Hoch- Taunus ist dieses Traumhaus und wartet aus Sie.

Im Besonderen hat...

Mehr anzeigen

Das Haus

Kategorie

Mehrfamilienhaus

Geschosse

2 Geschosse

Baujahr

2014

Bezug

sofort

  • Zustand: gepflegt
  • voll unterkellert, Dach ausgebaut
  • Terrasse, Garten
  • 7 Stellplätze: Garage, Außen-Stellplatz
  • Bad mit Fenster, Wanne und Dusche, Gäste-WC, Bidet
  • Einbauküche, offene Küche
  • Böden: Fliesenboden, Laminat, Linoleum
  • Fenster: Kunststofffenster
  • Anschlüsse: DSL-Anschluss, Kabelanschluss
  • Weitere Räume: Abstellraum, Wasch-Trockenraum
  • barrierefrei, als Ferienimmobilie geeignet
  • Ausstattung: möbliert
  • Swimming-Pool, Sauna
  • Ausblick: Bergblick, Fernblick
  • Sicherheitstechnik: Überwachungskamera

Energie & Heizung

A+
A
B
C
D
E
F
G
H
0 25 50 75 100 125 150 175 200 225 250 +

Energieausweistyp

Bedarfsausweis

Gebäudetyp

Wohngebäude

Baujahr laut Energieausweis

2014

Wesentliche Energieträger

Strom

Effizienzklasse

A

Endenergiebedarf

40,00 kWh/(m²·a)

Weitere Energiedaten

Haustyp

KfW 40

Energieträger

Elektro, Erdwärme

Heizungsart

Etagenheizung, Fußbodenheizung, Luft-/Wasser-Wärmepumpe

Details

Objektbeschreibung

Dieses wunderschöne und vielseitige große Haus ist mit Weitblick bereit in Bj. 2014 auf dem aller - neusten Stand der heutigen Technik mit Luft- Wasser- Wärmepumpe als Niedrigenergiehaus gebaut worden!

Für Besichtigungstermine bitten wir um kurze Anmeldung mit Namen und Uhrzeit wann Sie besichtigen möchten, per Mail...

Mehr anzeigen

Ausstattung

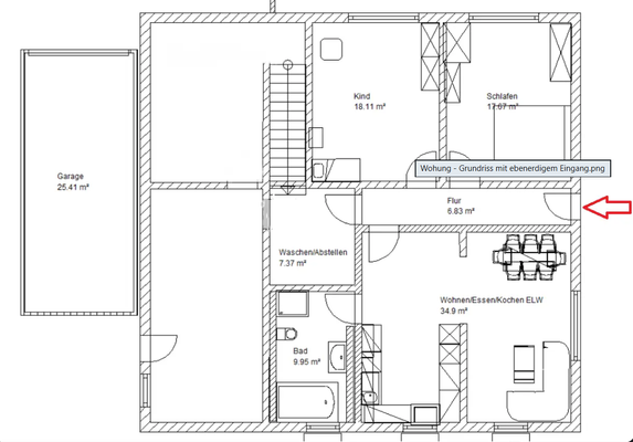
Haus im EG und DG sehr großzügig und offen geschnitten! Dazu eine große ELW!

- Energiesparende effiziente Wärmpumpenheizung
- Fußbodenheizung in allen Räumen & Geschossen
- 3 Fachverglasung
- Niedrigenergiehaus
- Große Küche mit großer Insel & Theke
- Sehr Hochwertige Bad Ausstattungen mit 4...

Mehr anzeigen

Weitere Informationen

Besichtigungstermine&Sonstiges
Traumhaus zum sofortigem Einzug möglich...

Eine persönliche Besichtigung ist gerne jeder Zeit möglich.

Auch am Samstag & Sonntag bieten wir hier eine Besichtigung an!

Das hier angebotene Haus wird inklusive der großen Einbauküche mit Insel und Theke abgegeben...

Mehr anzeigen

Anbieter der Immobilie

Partner

Wolf-Haus-GmbH - Frank Heil

Köppchenweg 30, 61389 Schmitten

user

Herrn Frank Heil

Dein Ansprechpartner

Anbieter-Website Anbieter-Profil Anbieter-Impressum

Online-ID: 2m7795r

Finde Angebote wie dieses

imageimageimage

Hier geht es zu unserem Impressum, den Allgemeinen Geschäftsbedingungen, den Hinweisen zum Datenschutz und nutzungsbasierter Online-Werbung.