

Bürofläche zur Miete • provisionsfrei12,90 €/m²1.160 m² Bürofläche • teilbar ab 561 m²
12,90 €
/m²
1.160 m² Bürofläche • teilbar ab 561 m²
Lichtdurchflutete helle BĂĽros in Eltersdorf sofort verfĂĽgbar
Merkmale
- frei ab sofort
- voll klimatisiert
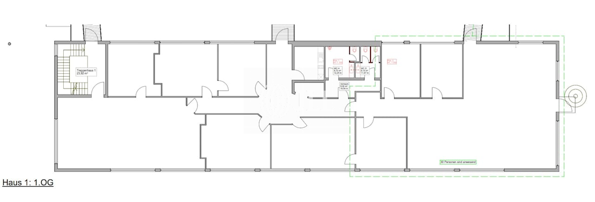
Grundrisse
Grundrisse
1 / 3
Realisiere Dein Projekt
Bausubstanz und Energie
Der Anbieter hat keine Informationen zum Energieverbrauch bereit gestellt.
- Baujahr2000
Mietkosten
Monatliche Miete
12,90 €/m²
Provision fĂĽr Mieter
provisionsfrei; provisionsfrei für den Mieter/Käufer
Kaution
keine Angabe
Lage

Eltersdorf, Erlangen (91058)
Der Anbieter hat die genaue Adresse nicht freigegeben
Weitere Informationen
Weitere Services
Lust auf eine Besichtigung?
Eine Frage zur Immobilie?
Ăśber den Anbieter
Sophie-Germain-StraĂźe 12, 90443 NĂĽrnberg
Partnerschaft

Frau Julia SchreiterDein Kontakt
Online-ID: 2m78558
Referenznummer: 4@of86730@14@0


Jones Lang LaSalle SE - Office Leasing NĂĽrnberg
Wie zufrieden bist du mit dieser Seite (nicht mit der Immobilie selbst)?

