
Lütt Immobilien GmbH
Herr Ron Lütt
Kontaktiere den Anbieter schriftlich, es ist keine Telefonnummer hinterlegt.
Preise & Kosten
Provision für Käufer
7,14% vom Kaufpreis (inkl. MwSt.)
Lage
Das Mehrfamilienhaus befindet sich in zentraler Lage von Bad Malente, in der Lütjenburger Straße. Durch die Nähe zum Ortskern sind sämtliche Einrichtungen des täglichen Bedarfs bequem zu Fuß oder mit dem Fahrrad erreichbar.
In unmittelbarer Umgebung befinden sich Supermärkte, Bäckereien, Ärzte, Apotheken sowie Cafés...
Das Renditeobjekt
Kategorie
Mehrfamilienhaus
Baujahr
1925
Frei ab
vermietet
Energie & Heizung
Warum sehe ich diese Anzeige? – Du siehst diese Anzeige basierend auf Ihrer Navigation auf unserer Website und den Suchkriterien, die du verwendet hast.
Energieausweistyp
Bedarfsausweis
Gebäudetyp
Wohngebäude
Wesentliche Energieträger
GAS
Gültigkeit
bis 06.10.2035
Effizienzklasse
H
Endenergiebedarf
269,10 kWh/(m²·a)
Weitere Energiedaten
Energieträger
Gas
Heizungsart
offener Kamin, Zentralheizung
Details
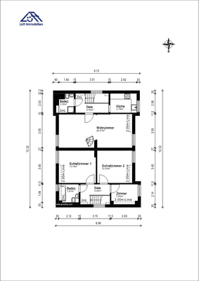
Objektbeschreibung
Wir freuen uns Ihnen als Nachweis- und/oder Vermittlungsmakler folgendes Objekt anbieten zu dürfen:
Das vielseitig nutzbare Mehrfamilienhaus befindet sich in der Lütjenburger Straße in 23714 Bad Malente, in zentraler Lage. Das Gebäude wurde in solider Bauweise errichtet und bietet zwei Wohneinheiten, eine gewerbliche...
Ausstattung
- ca. 176 m² Wohnfläche
- ca. 187 m² Werkstatt
- ca 74 m² Nutzfläche
- ca. 1483 m² Grundstücksfläche
- 2 Wohnungen
- 8 Zimmer
- 2 Badezimmer mit Duschwanne und Fenster
- 2 Badezimmer mit Begehbarer Dusche und Fenster
- 2 Einbauküchen
- Vollkeller
- Linke Wohnung hat eine Terassee in...
Preisinformation
1 Carportplatz
1 Garagenstellplatz
Ist-Mieteinnahmen pro Monat: 1.430,00 EUR
Weitere Informationen
Sonstiges
Bitte teilen Sie uns bei jeder Onlineanfrage Ihre vollständigen Kontaktdaten inklusive Anschrift, Emailadresse und Telefonnummer mit, damit Ihre Anfrage zeitnah bearbeitet werden kann.
Die Maklercourtage unserer angebotenen Objekte beträgt grundsätzlich 7,14% des beurkundeten Kaufpreises bei Immobilien und...
Anbieter der Immobilie
Lütt Immobilien GmbH
Auguste-Viktoria-Str 14, 24103 Kiel
Herr Ron Lütt
Dein Ansprechpartner
Kontaktiere den Anbieter schriftlich, es ist keine Telefonnummer hinterlegt.
Online-ID: 2m78f5l
Referenznummer: 382607
Finde Angebote wie dieses
Hier geht es zu unserem Impressum, den Allgemeinen Geschäftsbedingungen, den Hinweisen zum Datenschutz und nutzungsbasierter Online-Werbung.