
McMakler GmbH
Ihr McMakler Team
080 ···
Nr. anzeigenPreise & Kosten
Provision für Käufer
Die Provision i.H.v. 7,14 % inkl. MwSt. ist mit Kaufvertragsbeurkundung fällig, sofern der Verkaufspreis über 83.000,00 € liegt.
Liegt der Verkaufspreis dagegen bei/unter 83. Weitere Informationen siehe Provisionshinweis.
Lage
Lage: Urbane Lage mit guter Infrastruktur und Einkaufsmöglichkeiten
Bildung und Betreuung: Familienfreundlicher Wohnkomfort dank Kindergarten und Schule in fußläufiger Entfernung
Nahversorgung: Supermarkt, Apotheke und Bankfiliale in max. 5 Gehminuten Entfernung bieten gutes Wohnumfeld
Anbindung: Gut erreichbar -...
Das Renditeobjekt
Kategorie
Mehrfamilienhaus
Baujahr
1907
Bezug
nach Absprache
Energie & Heizung
Warum sehe ich diese Anzeige? – Du siehst diese Anzeige basierend auf Ihrer Navigation auf unserer Website und den Suchkriterien, die du verwendet hast.
Energieausweistyp
Bedarfsausweis
Gebäudetyp
Wohngebäude
Baujahr laut Energieausweis
1994
Wesentliche Energieträger
Gas
Effizienzklasse
E
Endenergiebedarf
151,90 kWh/(m²·a)
Weitere Energiedaten
Energieträger
Gas
Heizungsart
Zentralheizung
Details
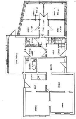
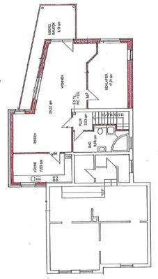
Objektbeschreibung
Objektnr: 1066650
+ Mehrfamilienhaus inkl. 3 Einheiten in Kaltenkirchen eignet sich für Kapitalanleger
+ Vermietet zu ca. 23.500 € p.a.
+ Die Immobilie präsentiert sich in einem gepflegten Zustand
+ Komfort durch eine solide Ausstattung, welche eine Einbauküche umfasst
+ Der Außenbereich umfasst einen...
Preisinformation
Ist-Mieteinnahmen pro Jahr: 23.500,00 EUR
Weitere Informationen
Provisionshinweis
Die Provision i.H.v. 7,14 % inkl. MwSt. ist mit Kaufvertragsbeurkundung fällig, sofern der Verkaufspreis über 83.000,00 € liegt.
Liegt der Verkaufspreis dagegen bei/unter 83.000,00 €, ist die fest vereinbarte Mindestprovision i.H.v. mind. 5.950,00 € inkl. MwSt. mit Kaufvertragsbeurkundung fällig...
Anbieter der Immobilie
McMakler GmbH
Am Postbahnhof 17, 10243 Berlin
Online-ID: 2m78j5n
Referenznummer: 7a22f551a9
Finde Angebote wie dieses
Hier geht es zu unserem Impressum, den Allgemeinen Geschäftsbedingungen, den Hinweisen zum Datenschutz und nutzungsbasierter Online-Werbung.