Version: 8.24.0Navigation ĂĽberspringen
Mietkosten auf Anfrage
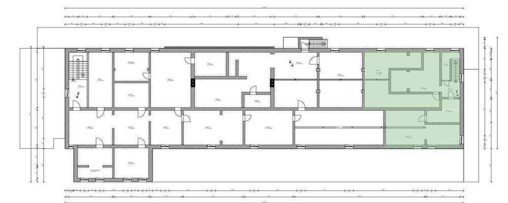
7 Zimmer  â€˘  402,7 m² BĂĽrofläche
Immowelt logo

Bürofläche zur Miete • provisionsfrei
Mietkosten auf Anfrage
7 Zimmer  â€˘  402,7 m² BĂĽrofläche

Kernsanierte Kanzlei-/ Büro-/ Praxisflächen OG Rechts

Moderne Kanzlei-, Büro-/ Praxisflächen mit individuellem Gestaltungsspielraum – kernsaniert und individuell und perfekt auf die Bedürfnisse gestaltbar.

Die großzügigen und lichtdurchfluteten Räume befinden sich im Obergeschoss des Gebäudes 22 im INNOPARK Kitzingen und bieten ideale Voraussetzungen für ein modernes und professionelles Arbeitsumfeld. Ein eigener, separater Eingang sorgt für maximale Privatsphäre und unterstreicht den repräsentativen Charakter der Fläche.

Aktuell wird das Gebäude nach GEG-Standards kernsaniert, wodurch höchste energetische und technische Ansprüche erfüllt werden. Der Mietpreis bezieht sich auf eine hochwertige Standardausstattung – gerne gehen wir auf Ihre individuellen Vorstellungen bei Raumaufteilung und Ausstattung im Rahmen des Innenausbaus ein. So gestalten Sie Ihre neuen Arbeitsräume ganz nach Ihren Anforderungen.

Ein Energieausweis wird umgehend nach Fertigstellung der SanierungsmaĂźnahmen nachgereicht.

Merkmale

  • Bezug: 2025
  • 2. Geschoss
  • TeekĂĽche
  • AuĂźen-Stellplatz
  • Kantine
  • Raumaufteilung flexibel
  • Bodenbelag: Kunststoff
  • Wachdienst

Grundrisse

Grundrisse
1 / 2

Realisiere Dein Projekt

Bausubstanz und Energie

Der Anbieter hat keine Informationen zum Energieverbrauch bereit gestellt.
  • Baujahr1938
  • EnergieträgerElektro, Luft-/Wasser-Wärmepumpe
Immowelt logo

Mietkosten

Miete auf Anfrage
Provision fĂĽr Mieter
provisionsfrei; Privisionsfrei
Kaution
2 NKM

Lage

address-icon
Kitzingen (97318)
Der Anbieter hat die genaue Adresse nicht freigegeben
Die Büro-/Praxisflächen überzeugen durch ihre zentrale Lage im öffentlichen Campus-Bereich. Hier erwartet Sie ein inspirierendes Ambiente mit einem großzügigen Park-Charakter, der zum Verweilen und Netzwerken einlädt.

Ein besonderes Highlight ist die hauseigene Betriebskantine “Larsons Kitchen”, die täglich leckere Tagesangebote sowie einen umfassenden Catering-Service bietet – perfekt für eine entspannte Mittagspause oder Besprechungen.

Die hervorragende Erreichbarkeit wird durch zahlreiche Parkplätze direkt vor der Tür gewährleistet, sowohl für Kunden als auch für Mitarbeiter. Zusätzlich stehen E-Charger für Elektrofahrzeuge und sichere Fahrradstellplätze zur Verfügung, sodass umweltfreundliche Mobilität problemlos möglich ist.

Der INNOPARK Kitzingen www.innopark-kitzingen.de ist der Gewerbepark in Nordbayern und die erste Adresse innovativer Unternehmen. Das Bürogebäude wurde in den 30er Jahren errichtet und die Gebäudekernsanierung wird voraussichtlich Anfang 2025 abgeschlossen sein.

Als Referenzkunde der Deutschen Telekom bietet der INNOPARK Kitzingen ein Full-Service-Paket (Glasfasernetz) an IT-Dienstleistungen an. Neben dem 24h-Sicherheitsdienst steht ein eigener und kostenpflichtiger Reinigungs- und Hausmeisterdienst für jeden Mieter zur Verfügung. Der Anteil der Solarenergie mit der der INNOPARK Kitzingen versorgt wird, erhöht sich in den kommenden Jahren.

Weitere Informationen

Besichtigungstermine INNOPARK Kitzingen GmbH
Steigweg 24, 97318 Kitzingen, Germany

Phone: +49 (9321) 2680 000
Fax: +49 (9321) 2680 9000

mailto: info@innopark-kitzingen.de

www.innopark-kitzingen.de

Sitz/Registered office: Kitzingen, WĂĽrzburg HRB 10890
Geschäftsführung/Management board: Thomas Neußner

Steuer/Tax: 257/115/62233, USt./VAT-ID: DE-273370857


Steigweg 24
97318 Kitzingen

Vertreten durch die Geschäftsführer:
Thomas NeuĂźner

Kontaktdaten:
Telefon: (+49) 9321 268 0000
Fax: (+49) 9321 268 09000

Email: info@innopark-kitzingen.de
Internet: www.innopark-kitzingen.de
Stichworte Zustand: Erstbezug, neuwertig, saniert, entkernt Serviceleistungen: Hausmeister Sonstiges: EDV-Verkabelung, Getrennte Damen- und Herren-WCs

Weitere Services

Lust auf eine Besichtigung?
Eine Frage zur Immobilie?
Nachricht hinzufĂĽgen
Mit der Nutzung der oben angegebenen Telefonnummer oder durch Klicken auf „Kontaktieren“ akzeptierst Du die Allgemeinen Nutzungsbedingungen, denen Du jederzeit widersprechen kannst. Weitere Informationen zum Datenschutz

Ăśber den Anbieter

Steigweg 24, 97318 Kitzingen
Herr Sebastian RĂĽb
Herr Sebastian RĂĽbDein Kontakt
Online-ID: 2m78l5z
INNOPARK Kitzingen GmbH
title
INNOPARK Kitzingen GmbH
Nachricht hinzufĂĽgen
Mit der Nutzung der oben angegebenen Telefonnummer oder durch Klicken auf „Kontaktieren“ akzeptierst Du die Allgemeinen Nutzungsbedingungen, denen Du jederzeit widersprechen kannst. Weitere Informationen zum Datenschutz
Wie zufrieden bist du mit dieser Seite (nicht mit der Immobilie selbst)?