
Marko Künne Immobilien
034 ···
Nr. anzeigenPreise & Kosten
Provision für Käufer
16.434,-€
Lage
Das Mehrfamilienhaus liegt in einer ruhigen Seitenstraße im gefragten Stadtteil Holzhausen - im Südosten der Leipziger Messestadt. Dieser hübsche, sehr gefragte Stadtteil, umgeben von kleinen Wäldern, historisch alten Gutshöfen, grünen Wiesen und Feldern bietet allen Naturliebhabern Ruhe und Erholung in...
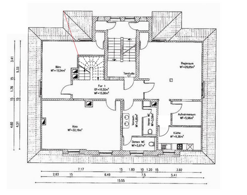
Die Wohnung
Wohnungslage
3. Geschoss
Bezug
01.02.2026
Wohnanlage
Energie & Heizung
Warum sehe ich diese Anzeige? – Du siehst diese Anzeige basierend auf Ihrer Navigation auf unserer Website und den Suchkriterien, die du verwendet hast.
Weitere Energiedaten
Energieträger
Gas
Heizungsart
Zentralheizung
Details
Objektbeschreibung
Diese Maisonette-Wohnung mit unverbaubarem Blick befindet sich in einem gepflegten Mehrfamilienhaus in Holzhausen und vereint zeitlosen Altbau-Charme mit modernen Ausstattungsdetails.
Im Außenbereich überzeugt das Haus mit einem großen, gepflegten Garten samt Pool - ein echtes Highlight für Mieter oder Eigennutzer...
Ausstattung
Die derzeit als Büro genutzte Einheit präsentiert sich funktional, hochwertig ausgestattet und bietet zugleich ein spannendes Entwicklungspotenzial. Die Nutzung zu gewerblichen Zwecken ist aktuell optimal umgesetzt, eine Umwandlung in Wohnraum ist jedoch problemlos möglich und erfordert lediglich kleinere Anpassungen im...
Preisinformation
4 Stellplätze
Nettorendite Soll in %: 5
Soll-Mieteinnahmen pro Jahr: 23.017,20 EUR
Weitere Informationen
Sonstiges
Alle Angaben sind ohne Gewähr und basieren ausschließlich auf Informationen, die uns von unserem Auftraggeber zur Verfügung gestellt wurden. Wir übernehmen keine Gewähr für die Vollständigkeit, Richtigkeit und Aktualität dieser Angaben.
Energiepass
Energieausweis wird bei Besichtigung...
Anbieter der Immobilie
Online-ID: 2m78q5z
Referenznummer: 605899- WE03
Finde Angebote wie dieses
Hier geht es zu unserem Impressum, den Allgemeinen Geschäftsbedingungen, den Hinweisen zum Datenschutz und nutzungsbasierter Online-Werbung.