

Nickel Immobilien GmbH
Frau Mareike Mechtel
033 ···
Nr. anzeigenPreise & Kosten
Kaution
3 Nettokaltmieten
Warum sehe ich diese Anzeige? – Du siehst diese Anzeige basierend auf Ihrer Navigation auf unserer Website und den Suchkriterien, die du verwendet hast.
Lage
Neuschmerzke ist quasi das Tor zu der schönen Wasserstadt Brandenburg an der Havel. Der Ortsteil liegt etwa 4 Km südöstlich des Stadtkerns an der B 102.
Eine Bushaltestelle an der B102 ist fußläufig nur wenige Gehminuten entfernt, sodass Sie schnell die Stadt oder den Hauptbahnhof erreichen können.
Die Wohnung
Wohnungslage
2. Geschoss
Bezug
01.01.2026
Wohnanlage
Energie & Heizung
Warum sehe ich diese Anzeige? – Du siehst diese Anzeige basierend auf Ihrer Navigation auf unserer Website und den Suchkriterien, die du verwendet hast.
Energieausweistyp
Bedarfsausweis
Gebäudetyp
Wohngebäude
Baujahr laut Energieausweis
2022
Wesentliche Energieträger
ERDWAERME
Gültigkeit
bis 28.11.2031
Effizienzklasse
A+
Endenergiebedarf
14,60 kWh/(m²·a)
Weitere Energiedaten
Energieträger
Erdwärme
Heizungsart
Fußbodenheizung
Details
Objektbeschreibung
Die Gebäude haben einen KfW-40 Standard und so können Sie das exklusive Wohngefühl völlig sorgenfrei genießen.
Die Beheizung der Wohnungen erfolgt umweltschonend über Sole-Wasser-Wärmepumpen. Der dafür benötigte Strom wird teilweise durch die gebäudeigenen Photovoltaikanlagen produziert. Das ist nachhaltig und...
Ausstattung
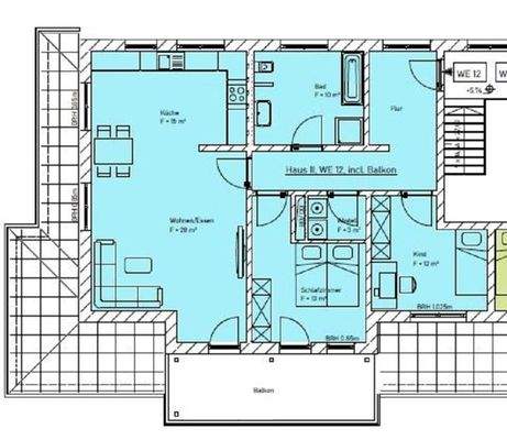
Die angebotene Wohnung verfügt über 3-Zimmer und gliedert sich in ein Schlaf-, Kinder- oder Arbeitszimmer, einem Badezimmer mit Badewanne und separater Echtglasdusche, einem Wohnbereich und einer Küche. Vom Wohnbereich gelangen Sie auf den sehr großzügigen Balkon, der im Sommer Ihren Wohnbereich nach außen...
Preisinformation
1 Stellplatz, Miete: 30,00 EUR
Weitere Informationen
Sonstiges
Es liegt ein Energiebedarfsausweis vor.
Dieser ist gültig bis 28.11.2031.
Endenergiebedarf beträgt 14.60 kwh/(m²*a).
Wesentlicher Energieträger der Heizung ist Erdwärme.
Das Baujahr des Objekts lt. Energieausweis ist 2022.
Die Energieeffizienzklasse ist A+.
Wir hoffen, Ihnen ein...
Anbieter der Immobilie
Nickel Immobilien GmbH
Geschwister-Scholl-Str. 36, 14776 Brandenburg

Online-ID: 2m79558
Referenznummer: mm2060
Finde Angebote wie dieses
Weitere Immobilien
Hier geht es zu unserem Impressum, den Allgemeinen Geschäftsbedingungen, den Hinweisen zum Datenschutz und nutzungsbasierter Online-Werbung.