

ImmoExpert Bannier Immobilienberatung
Herr Mike Bannier
070 ···
Nr. anzeigenPreise & Kosten
Provision für Käufer
2,95 inkl. MwSt.
Lage
Die Wohnung befindet sich in der Kirchhalde, einem beliebten Wohngebiet von Großbettlingen, das sich durch eine ruhige und familienfreundliche Atmosphäre auszeichnet. In fußläufiger Entfernung finden Sie Bäcker, Supermärkte sowie Cafés und Restaurants. Kindergarten und Grundschule sind bequem erreichbar, ebenso die...
Die Wohnung
Wohnungslage
1. Geschoss
Bezug
sofort
Wohnanlage
Energie & Heizung
Warum sehe ich diese Anzeige? – Du siehst diese Anzeige basierend auf Ihrer Navigation auf unserer Website und den Suchkriterien, die du verwendet hast.
Energieausweistyp
Bedarfsausweis
Gebäudetyp
Wohngebäude
Baujahr laut Energieausweis
1988
Wesentliche Energieträger
ELEKTRO
Gültigkeit
10.12.2035 bis 10.12.2035
Effizienzklasse
G
Endenergiebedarf
223,00 kWh/(m²·a)
Weitere Energiedaten
Energieträger
Elektro
Heizungsart
Etagenheizung
Details
Objektbeschreibung
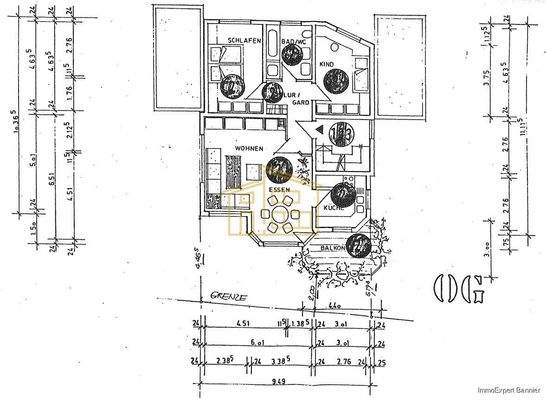
Diese charmante 3-Zimmer-Eigentumswohnung im 1. Obergeschoss verbindet eine ruhige, harmonische Wohnlage mit einem hellen, einladenden Ambiente und einem Potenzial, das heute nur noch selten zu finden ist. Schon beim Betreten spürt man die Großzügigkeit und Offenheit, die diese Wohnung ausstrahlt. Dank großer Fensterflächen...
Ausstattung
- strombetriebene Nachtspeicheröfen in allen Zimmern (effiziente Etagenheizung mit vielseitigen Umrüstungsmöglichkeiten)
- Warmwasseraufbereitung über Durchlauferhitzer (unabhängig und bedarfsgerecht)
- Holzfenster mit Isolierverglasung für ein angenehmes Wohnklima
- Großer, sonniger Balkon (ca. 6 m²) (ideal zum...
Weitere Informationen
Sonstiges
Die Wohnung ist derzeit leerstehend und kann nach Vereinbarung kurzfristig übernommen werden - perfekt für alle, die zeitnah ein neues Zuhause suchen. Die anstehenden Renovierungsarbeiten lassen sich frei und individuell gestalten, wodurch sich ein großes Potenzial zur Modernisierung und Wertsteigerung eröffnet...
Anbieter der Immobilie
ImmoExpert Bannier Immobilienberatung
Weiherstr. 20, 72663 Großbettlingen

Online-ID: 2m7a65v
Referenznummer: 25-101
Finde Angebote wie dieses
Hier geht es zu unserem Impressum, den Allgemeinen Geschäftsbedingungen, den Hinweisen zum Datenschutz und nutzungsbasierter Online-Werbung.