
New Modern Living Immobilienentwicklung und Vertrieb GmbH
Team Team Vertrieb
+49 ···
Nr. anzeigenDieses Angebot ist Teil des Neubauprojekts
NEUBAU - Doppelhaushälfte im Nürnberger Norden
Preise & Kosten
Provision für Käufer
provisionsfrei
Lage
Das Projekt ist ideal für alle, die verkehrstechnisch gut angebunden sein möchten und dennoch die Geborgenheit eines familienfreundlichen und grünen Umfelds suchen.
Inmitten der Metropolregion Nürnberg gelegen profitiert Höfles durch die Zugehörigkeit zum Stadtgebiet von einer gewachsenen Infrastruktur und bietet...
Das Haus
Kategorie
Doppelhaushälfte
Baujahr
2026
Bezug
01.04.2027
Das Neubauprojekt
Energie & Heizung
Warum sehe ich diese Anzeige? – Du siehst diese Anzeige basierend auf Ihrer Navigation auf unserer Website und den Suchkriterien, die du verwendet hast.
Energieausweistyp
Bedarfsausweis
Gebäudetyp
Wohngebäude
Baujahr laut Energieausweis
2026
Wesentliche Energieträger
Wärmepumpe
Effizienzklasse
A+
Endenergiebedarf
29,40 kWh/(m²·a)
Weitere Energiedaten
Haustyp
Massivhaus
Heizungsart
Fußbodenheizung, Luft-/Wasser-Wärmepumpe
Details
Objektbeschreibung
Ganz viel Wohnkomfort, Design und Funktionalität an einem Platz.
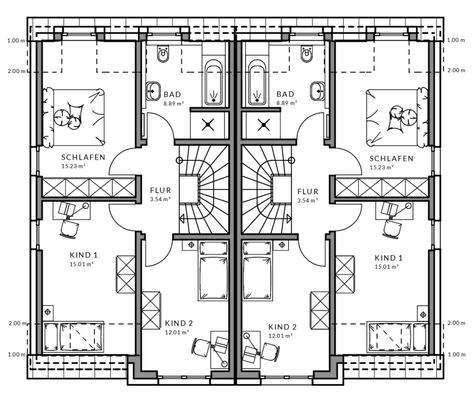
Diese familienfreundliche Doppelhaushälfte bietet Ihnen mit insgesamt fast 200 m² Wohn-/ Nutzfläche, verteilt auf 4 Etagen, jede Menge Raum für die ganze Familie und legt den perfekten Grundstein für ein harmonisches Miteinander. Denn kaum ein anderer Ort...
Ausstattung
- KfW-Effizienzhaus 55 in Massivbauweise mit Energieeffizienzklasse A+
- Hocheffiziente, außentemperaturgesteuerte Luft-Wasser-Wärmepumpe
- 3-fach isolierverglaste Kunststofffenster
- Individuell regulierbare Fußbodenheizung in allen Wohn- und Schlafräumen sowie Bädern
- Hochwertige Fliesen- und Bodenbeläge
-...
Preisinformation
2 Stellplätze
Weitere Informationen
Sonstiges
Sind Sie Immobilieneigentümer oder haben Sie Freunde, Bekannte oder Nachbarn, die Ihre Immobilie erfolgreich vermieten oder verkaufen wollen?
Wir suchen laufend hochwertige Mietwohnungen, Einfamilienhäuser, Doppelhaushälften sowie Reihenhäuser im Stadtgebiet und Nahbereich von Erlangen, Fürth und Nürnberg...
Online-ID: 2m7ac5d
Referenznummer: 6817#Wauym
Finde Angebote wie dieses
Hier geht es zu unserem Impressum, den Allgemeinen Geschäftsbedingungen, den Hinweisen zum Datenschutz und nutzungsbasierter Online-Werbung.