

Gründer Immobilien
Herr Ralf Gründer
049 ···
Nr. anzeigenPreise & Kosten
Provision für Käufer
provisionsfrei
Lage
Herzlake - Wohnen im charmanten Erholungsort
Herzlake ist eine lebenswerte Gemeinde im Landkreis Emsland, die für ihre naturnahe Lage, ihre sehr gute Infrastruktur und einen hohen Freizeitwert bekannt ist. Der Ort bietet eine perfekte Mischung aus ländlicher Ruhe und moderner Wohnqualität. Dank zahlreicher...
Die Wohnung
Wohnungslage
Erdgeschoss
Bezug
nach Vereinbarung
Derzeitige Nutzung
vermietet
Wohnanlage
Energie & Heizung
Warum sehe ich diese Anzeige? – Du siehst diese Anzeige basierend auf Ihrer Navigation auf unserer Website und den Suchkriterien, die du verwendet hast.
Weitere Energiedaten
Heizungsart
Luft-/Wasser-Wärmepumpe
Details
Objektbeschreibung
Stilvoll wohnen in Herzlake - moderne 2-Zimmer-Wohnung mit Terrasse, Garten & Top-Ausstattung
Diese moderne und äußerst gepflegte 2-Zimmer-Eigentumswohnung im Erdgeschoss eines im Jahr 2023 errichteten Wohnhauses vereint Komfort, Effizienz und zeitloses Design - ideal für Kapitalanleger oder Eigennutzer, die Wert...
Ausstattung
Ausstattung - modern, komfortabel und auf lange Lebensdauer ausgelegt
Diese Erdgeschosswohnung überzeugt durch eine hochwertige, zeitgemäße Ausstattung, die sowohl optisch als auch funktional höchsten Wohnansprüchen gerecht wird. Im gesamten Wohn- und Schlafbereich sind hochwertige Vinyl-Designböden verlegt, die eine...
Preisinformation
1 Stellplatz
Weitere Informationen
Sonstiges
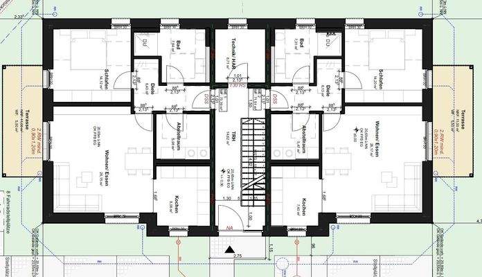
Wohnflächenaufteilung:
Erdgeschosswohnung:
Diele ca. 6,13 m²
Wohnzimmer ca. 26,17 m²
Offene Küche ca. 7,40 m²
Schlafen ca. 14,20 m²
Badezimmer ca. 7,31 m²
Abstell./HWR ca.5,47 m²
Terrasse anteilig ca.5,50 m²
Stichworte
Stellplatz vorhanden, Anzahl der Schlafzimmer: 1, Anzahl der...
Anbieter der Immobilie
Gründer Immobilien
Haupstraße 97, 26892 Dörpen

Online-ID: 2m7ay5g
Referenznummer: 8462#CMHriC
Finde Angebote wie dieses
Hier geht es zu unserem Impressum, den Allgemeinen Geschäftsbedingungen, den Hinweisen zum Datenschutz und nutzungsbasierter Online-Werbung.