

Homeday GmbH
Kontaktiere den Anbieter schriftlich, es ist keine Telefonnummer hinterlegt.
Preise & Kosten
Provision für Käufer
3,57% inkl. MwSt. Sofern der Kaufpreis unter 89636,13€ liegt, fällt eine Mindestprovision an von 3200,01€ inkl. MwSt.
Lage
Elmenhorst im Kreis Herzogtum Lauenburg präsentiert sich als idyllischer Wohnort inmitten einer landschaftlich reizvollen Umgebung, die geprägt ist von Wiesen, Feldern und kleinen Waldgebieten. Der Ort bewahrt sich eine ruhige, dörfliche Atmosphäre und bietet gleichzeitig eine gute Anbindung an größere Städte. Über die...
Das Haus
Kategorie
Bauernhaus
Baujahr
1935
Bezug
nach Vereinbarung
Derzeitige Nutzung
vermietet
Energie & Heizung
Warum sehe ich diese Anzeige? – Du siehst diese Anzeige basierend auf Ihrer Navigation auf unserer Website und den Suchkriterien, die du verwendet hast.
Energieausweistyp
Bedarfsausweis
Gebäudetyp
Wohngebäude
Baujahr laut Energieausweis
1935
Wesentliche Energieträger
Öl
Gültigkeit
12.09.2025 bis 12.09.2035
Effizienzklasse
F
Endenergiebedarf
186,80 kWh/(m²·a)
Weitere Energiedaten
Energieträger
Öl
Heizungsart
Zentralheizung
Details
Ausstattung
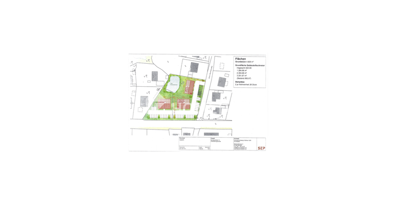
Das großzügige Grundstück mit 4.598 Quadratmetern bietet ein außergewöhnliches Entwicklungspotenzial. Die Gemeinde unterstützt ausdrücklich die Planung von bis zu 19 Wohneinheiten - denkbar sind zwei Mehrfamilienhäuser mit jeweils acht Wohnungen sowie ergänzende Reihenhäuser. Damit eröffnet sich die Chance auf eine moderne...
Preisinformation
1 Stellplatz
1 Garagenstellplatz
Weitere Informationen
Sonstiges
Unsere Makler beraten Sie gerne persönlich per Telefon oder Videokonferenz. Schicken Sie uns einfach eine Anfrage über Immowelt und registrieren Sie sich auf unserer Kundenplattform myHomeday. Einen Link zu myHomeday erhalten Sie automatisch nach Ihrer Anfrage per E-Mail. Dort können Sie die Adresse und Dokumente...
Anbieter der Immobilie
Homeday GmbH
Axel-Springer-Straße 65 , 10969 Berlin
Kontaktiere den Anbieter schriftlich, es ist keine Telefonnummer hinterlegt.
Online-ID: 2m7c25c
Referenznummer: 0CCB322V
Finde Angebote wie dieses
Hier geht es zu unserem Impressum, den Allgemeinen Geschäftsbedingungen, den Hinweisen zum Datenschutz und nutzungsbasierter Online-Werbung.