
Evernest GmbH
Fabian Both
+49 ···
Nr. anzeigenPreise & Kosten
Provision für Käufer
3.57 inkl. MwSt.
Bei Abschluss eines notariellen Kaufvertrages ist eine Käuferprovision vom Käufer in Höhe von 3.57 % inkl. MwSt. aus dem Kaufpreis fällig.
Lage
Das Mehrfamilienhaus befindet sich in einer ruhigen und dennoch zentral gelegenen Wohngegend, die durch eine harmonische Mischung aus urbanem Leben und naturnaher Umgebung besticht. Umgeben von gepflegten Grünanlagen und familienfreundlichen Einrichtungen, bietet die Lage sowohl für Singles, als auch für Familien ein...
Das Haus
Kategorie
Mehrfamilienhaus
Baujahr
1889
Energie & Heizung
Warum sehe ich diese Anzeige? – Du siehst diese Anzeige basierend auf Ihrer Navigation auf unserer Website und den Suchkriterien, die du verwendet hast.
Energieausweistyp
Bedarfsausweis
Gebäudetyp
Wohngebäude
Effizienzklasse
H
Endenergiebedarf
303,00 kWh/(m²·a)
Weitere Energiedaten
Energieträger
Gas
Details
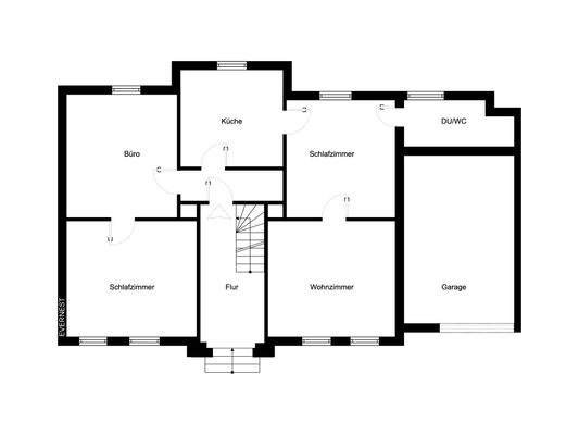
Objektbeschreibung
Dieses historische Mehrfamilienhaus, erbaut im Jahr 1889, präsentiert sich als attraktives Buy-and-Hold-Investment in der Innenstadt von Lüdenscheid. Auf einem ca. 406m² großen Grundstück gelegen, bietet die voll unterkellerte Immobilie aktuell ca. 155,67m² ausgewiesene Wohnfläche, ergänzt durch ca. 150,74 m² Nutzfläche...
Ausstattung
Baujahr: 1889
Wohnfläche: ca. 155,67 m²
Nutzfläche: ca. 150,74 m²
Grundstück: ca. 406 m²
Heizung: Gas-Etagenheizungen(2020/1994/1993)
Erdgeschoss Wohnung (noch vermietet bis 31.01.2026)
(keine Bilder im Exposé)
Wohnfläche EG: ca. 81,41...
Weitere Informationen
Stichworte
Parkhaus vorhanden, Anzahl der Schlafzimmer: 7, Anzahl der Badezimmer: 3, 3 Etagen
Anbieter der Immobilie
Online-ID: 2m7c65f
Referenznummer: L-HHG7NMM
Finde Angebote wie dieses
Hier geht es zu unserem Impressum, den Allgemeinen Geschäftsbedingungen, den Hinweisen zum Datenschutz und nutzungsbasierter Online-Werbung.