
ÄRZTE & APOTHEKER IMMOBILIEN
Herr Alexander Rixen
004 ···
Nr. anzeigenPreise & Kosten
Provision für Käufer
4,99% inkl. ges. MwSt.
Lage
Der Ort Scharbeutz - Gleschendorf gehört zu der Ge- meinde Scharbeutz im Kreis Ostholstein.
In dem ruhigen Kirchdorf wohnen ca, 1.110 Einwoh- ner. Alle Einrichtungen des täglichen Bedarfs sind in direkter Nähe vorhanden. Der Fluss "Schwartau" befindet sich in direkter Nähe zum Baugrundstück.
Der kleine sowie der große...
Das Haus
Kategorie
Mehrfamilienhaus
Baujahr
2022
Bezug
ab sofort
Energie & Heizung
Warum sehe ich diese Anzeige? – Du siehst diese Anzeige basierend auf Ihrer Navigation auf unserer Website und den Suchkriterien, die du verwendet hast.
Weitere Energiedaten
Energieträger
Gas
Heizungsart
Zentralheizung
Details
Objektbeschreibung
Das hier angebotene Mehrfamilienhaus wird umfassend saniert, sogar teilweise erweitert und schlüsselfertig übergeben.
Somit entstehen in diesem Jahr, an einem zentralen Verkehrspunkt, an der Bundesstraße 432 hochwertig und modern ausgestattete Wohnungen, die festvermietet oder selbst bewohnt werden können.
Bei den...
Ausstattung
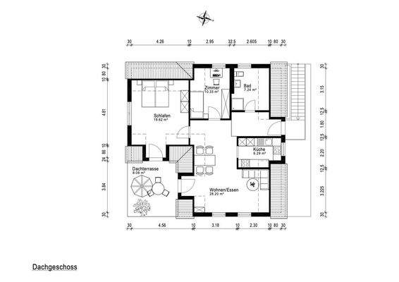
Aufteilung der vier Wohnungen :
- Wohnung Nr. 1 : 119,60 m2 - Wohnung Nr. 2 : 98,17 m2 - Wohnung Nr. 3 : 54,88 m2 - Wohnung Nr. 4 : 32,55 m2
- Die Wohnungen 1 & 2 verfügen je über eine Terrasse und einen Balkon
- Die Wohnungen 3 & 4 verfügen über einen Balkon bzw. eine Dachterrasse
- Schall-&...
Preisinformation
4 Carportplätze
Weitere Informationen
Sonstiges
Vielen Dank für Ihr Interesse an der von uns angebotenen Immobilie.
Bitte haben Sie Verständnis dafür, dass wir unseren Auftraggebern Diskretion zugesagt haben und Sie daher um die Angabe Ihrer vollständigen Kontaktdaten inkl. Ihrer Telefonnummer bitten müssen.
Gern senden wir Ihnen anschließend ein...
Anbieter der Immobilie
ÄRZTE & APOTHEKER IMMOBILIEN
Lindenstr. 29, 21335 Lüneburg
Online-ID: 2m7d25l
Referenznummer: 221073-49
Finde Angebote wie dieses
Hier geht es zu unserem Impressum, den Allgemeinen Geschäftsbedingungen, den Hinweisen zum Datenschutz und nutzungsbasierter Online-Werbung.