

Winegg Makler GmbH
Herr Christoph Kral
+43 ···
Nr. anzeigenPreise & Kosten
Provision für Käufer
3% des Kaufpreises zzgl. 20% USt.
Lage
Die Liegenschaft befindet sich in einer beliebten und ruhigen Seitengasse des 7. Bezirks, in der Zieglergasse, zwischen Kandlergasse und Westbahnstraße gelegen.
Die Infrastruktur ist als ausgezeichnet zu bewerten - in unmittelbarer Umgebung befinden sich unter anderem...
Garage/Stellplatz
Kategorie
Außen-Stellplatz
Energie & Heizung
Warum sehe ich diese Anzeige? – Du siehst diese Anzeige basierend auf Ihrer Navigation auf unserer Website und den Suchkriterien, die du verwendet hast.
Heizwärmebedarf (HWB)
192,30 kWh/(m²·a)
Gesamtenergieeffizienz (fGEE)
2,67
Details
Objektbeschreibung
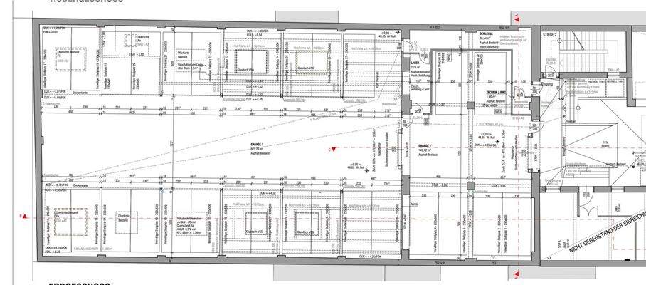
Bei dieser Liegenschaft handelt es sich um ein schönes Jahrhundertwendehaus mit Innenhof!
Zum Verkauf stehen insgesamt 29 Kfz-Stellplätze in einer ehemaligen Druckerei. Die Garage bietet ein außergewöhnliches Ambiente mit einer Deckenhöhe von bis zu 8 Meter!
Die Stellplatz-, bzw. die...
Weitere Informationen
Stichworte
Fahrradraum, Bundesland: Wien, 1 Etagen, modernisiert: 2017
Anbieter der Immobilie
Winegg Makler GmbH
Herrengasse 1-3 / 4. Stockwerk, 1010 WIEN

Online-ID: 2m7du5u
Referenznummer: OBGC20251228152307544d4dd780109
Finde Angebote wie dieses
Günstige Immobilienfinanzierung einfach online berechnen
Persönliches Angebot berechnenWarum sehe ich diese Werbung? – Du siehst diese Werbung basierend auf Deiner Navigation auf unserer Website und der von Dir verwendeten Suchkriterien.
Diese Werbung wird bezahlt von durchblicker
Werbung melden
Hier geht es zu unserem Impressum, den Allgemeinen Geschäftsbedingungen, den Hinweisen zum Datenschutz und nutzungsbasierter Online-Werbung.