

Makler Puttkammer & Team
Herr Thomas Zufall
0 4 ···
Nr. anzeigenPreise & Kosten
Provision für Käufer
Die Käufercourtage beträgt 5 % inkl. der gesetzlichen MwSt.
Siehe bitte auch Sonstiges!
Lage
Bevorzugte Wohnlage in Neu Wulmstorf.
Neu Wulmstorf liegt nur etwa 30 km Luftlinie vom Stadtzentrum Hamburg in südwestlicher Richtung entfernt, gut zu erreichen durch den Elbtunnel über die A7 und die B73, sowie aus Richtung Süden über die A1 und die B3. Direkter Bahnanschluss besteht zur Strecke Hamburg-Cuxhaven...
Das Renditeobjekt
Kategorie
Mehrfamilienhaus
Baujahr
1999
Bezug
Nach Vereinbarung
Frei ab
vermietet
Geschosse
2 Geschosse
Energie & Heizung
Warum sehe ich diese Anzeige? – Du siehst diese Anzeige basierend auf Ihrer Navigation auf unserer Website und den Suchkriterien, die du verwendet hast.
Energieausweistyp
Verbrauchsausweis
Gebäudetyp
Wohngebäude
Baujahr laut Energieausweis
1999
Wesentliche Energieträger
Gas
Effizienzklasse
C
Endenergieverbrauch
87,20 kWh/(m²·a)
Weitere Energiedaten
Energieträger
Gas
Heizungsart
Zentralheizung
Details
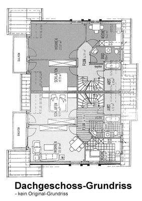
Objektbeschreibung
Gepflegtes Mehrfamilienhaus mit 4 Einheiten in bester Wohnlage von Neu Wulmstorf.
Flächenaufteilung:
-Ca. 325 - Wohnfläche
-Ca. 494 - Eigenlandgrundstück (real geteilt)
Wohnungsgrößen:
- Ca. 68 m² - Wohnung-Nr. 1 (Erdgeschoss -links - Haus 77)
- Ca. 94 m² – Wohnung -Nr. 2...
Weitere Informationen
Sonstiges
Die Käufercourtage in Höhe von 5 % inkl. der gesetzlichen Mehrwertsteuer auf den Kaufpreis ist mit dem Zustandekommen des Kaufvertrages (notarieller Vertragsabschluss) verdient und fällig. Die vermittelnde und/oder nachweisende Maklerfirma Puttkammer & Team, und ggf. deren Beauftragter, erhalten einen...
Dokumente
Anbieter der Immobilie
Makler Puttkammer & Team
Rudolf-Diesel-Straße 1, 21629 Neu Wulmstorf

Online-ID: 2m7e956
Referenznummer: 1262245456
Finde Angebote wie dieses
Hier geht es zu unserem Impressum, den Allgemeinen Geschäftsbedingungen, den Hinweisen zum Datenschutz und nutzungsbasierter Online-Werbung.