
Select Investments Residential GmbH
Herr Sven Schatte
030 ···
Nr. anzeigenPreise & Kosten
Kaution
3 Monatsmieten
Provision für Mieter
provisionsfrei
Warum sehe ich diese Anzeige? – Du siehst diese Anzeige basierend auf Ihrer Navigation auf unserer Website und den Suchkriterien, die du verwendet hast.
Lage
Das Büro befindet sich in zentraler Lage mit sehr guter Infrastruktur und sehr guter Anbindung an das öffentliche Verkehrsnetz.
Inmitten einer gehobenen Umgebung finden Sie ein kreatives und produktives wie auch herausforderndes Arbeits- und Lebensumfeld, wie man es in Berlin nur an wenigen Orten antrifft.
Außer...
Büro-/Praxisfläche
Baujahr
2013
Geschoss
2. Geschoss
Energie & Heizung
Warum sehe ich diese Anzeige? – Du siehst diese Anzeige basierend auf Ihrer Navigation auf unserer Website und den Suchkriterien, die du verwendet hast.
Gebäudetyp
Nicht-Wohngebäude
Weitere Energiedaten
Energieträger
Fernwärme
Heizungsart
Zentralheizung
Details
Objektbeschreibung
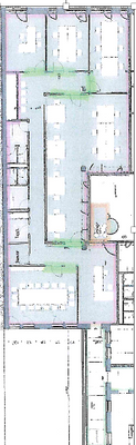
Die attraktive Bürofläche befindet sich in einem Geschäftshaus aus dem Jahr 2013 direkt auf der Schloßstraße in Berlin Steglitz.
Die Gesamtfläche beträgt ca. 326 m² und teilt sich in 6 nutzbare Einzelbüros, einen Empfangsbereich, einer offenen Teeküche, einem Serverraum, zwei WC-Bereiche und einen begehbaren Lichthof...
Weitere Informationen
Stichworte
Sonstiges: Getrennte Damen- und Herren-WCs
Anbieter der Immobilie
Select Investments Residential GmbH
Kurfürstendamm 187, 10707 Berlin
Online-ID: 2m7f85s
Referenznummer: GO 19122025-010
Finde Angebote wie dieses
Hier geht es zu unserem Impressum, den Allgemeinen Geschäftsbedingungen, den Hinweisen zum Datenschutz und nutzungsbasierter Online-Werbung.