
ohne-makler.net - Immobilien selbst vermarkten
Angebot von Marc Großkopf
Kontaktiere den Anbieter schriftlich, es ist keine Telefonnummer hinterlegt.
Preise & Kosten
Provision für Käufer
provisionsfrei
Lage
Die Gemeinde Stegaurach mit rund 6.900 Einwohnern befindet sich im oberfränkischen Landkreis Bamberg und zählt zur Metropolregion Nürnberg. Sie liegt idyllisch im Tal der Aurach, am Fuß der Altenburg, und ist geprägt von Wiesengründen, Wasserläufen und Teichen - eine Umgebung, die Naturverbundenheit und Erholung direkt vor...
Das Haus
Kategorie
Reihenmittelhaus
Baujahr
2026
Bezug
nach Absprache
Energie & Heizung
Warum sehe ich diese Anzeige? – Du siehst diese Anzeige basierend auf Ihrer Navigation auf unserer Website und den Suchkriterien, die du verwendet hast.
Energieausweistyp
Bedarfsausweis
Gebäudetyp
Wohngebäude
Effizienzklasse
A
Endenergiebedarf
40,00 kWh/(m²·a)
Details
Objektbeschreibung
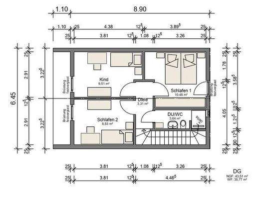
Dieses Neubauprojekt umfasst insgesamt 13 moderne Reihenhäuser in nachhaltiger Holzbauweise. Jedes Haus bietet eine Nutzfläche von 86,66 m² (ohne Terrassenfläche) und verfügt über 4 Zimmer, die sich durch einen effizienten Grundriss auszeichnen. Bei der Umsetzung kommen ausschließlich hochwertige Materialien zum Einsatz, um...
Ausstattung
Terrasse, Garten, Duschbad, Gäste-WC
Bemerkungen:
Stellplatz: 5.000,00 €
Preisinformation
2 Stellplätze
Weitere Informationen
Sonstiges
Makleranfragen nicht erwünscht. Nach § 7 UWG sind unaufgeforderte Kontaktaufnahmen durch Makler ohne ausdrückliche Einwilligung des Empfängers verboten!
ohne-makler (OM) ist weder Anbieter noch Vermittler der Immobilie. OM betreibt eine Plattform für Immobilieneigentümer, die unter anderem die...
Anbieter der Immobilie
ohne-makler.net - Immobilien selbst vermarkten
Humboldtstr. 25 A, 21509 Glinde
Angebot von Marc Großkopf
Dein Ansprechpartner
Kontaktiere den Anbieter schriftlich, es ist keine Telefonnummer hinterlegt.
Online-ID: 2m7gr58
Referenznummer: 405551
Finde Angebote wie dieses
Hier geht es zu unserem Impressum, den Allgemeinen Geschäftsbedingungen, den Hinweisen zum Datenschutz und nutzungsbasierter Online-Werbung.