
ProPotsdam GmbH - Grundstücksentwicklung u. Vertrieb
Kontaktiere den Anbieter schriftlich, es ist keine Telefonnummer hinterlegt.
Preise & Kosten
Provision für Käufer
provisionsfrei
Lage
Golm ist eingebettet in die historische Kulturlandschaft der Potsdamer Havelseen und bietet reizvolle Gegensätze. Exzellente Wissenschaftseinrichtungen und ländliche Strukturen treffen hier aufeinander. Nur wenige Kilometer von Sanssouci entfernt und in 30 Minuten mit der Regionalbahn von Berlin zu erreichen, war und ist Golm...
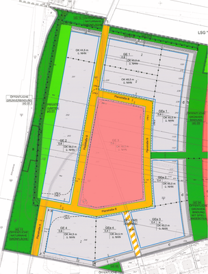
Das Grundstück
Kategorie
Gewerbe-Grundstück
Details
Objektbeschreibung
Seit Mitte der 90er Jahre hat sich der Potsdam Science Park sowohl in wissenschaftlicher als auch in wirtschaftlicher Hinsicht zum innovativsten und erfolgversprechendsten Standort seiner Art im Land Brandenburg entwickelt. Mehr als 200 Professorinnen und Professoren forschen und lehren hier, 2.500 Mitarbeiterinnen und...
Weitere Informationen
Sonstiges
Mit dem Technology Campus soll der Science Park Potsdam nicht nur größer, sondern auch attraktiver werden. Inhaltlicher Anspruch ist es, auf den vorhandenen Flächen vorrangig Nutzer*innen und Nutzungen zu etablieren, die das Profil und die Qualität des Standortes stärken, ergänzen sowie bereichern und erweitern...
Anbieter der Immobilie
ProPotsdam GmbH - Grundstücksentwicklung u. Vertrieb
Pappelallee 4, 14469 Potsdam
Kontaktiere den Anbieter schriftlich, es ist keine Telefonnummer hinterlegt.
Online-ID: 2m7h85y
Referenznummer: Technology Campus Potsdam - zentrales Baufeld
Finde Angebote wie dieses
Hier geht es zu unserem Impressum, den Allgemeinen Geschäftsbedingungen, den Hinweisen zum Datenschutz und nutzungsbasierter Online-Werbung.