
IMMOHANSA Immobilien GmbH & Co. KG
Frau Tessa Dudek
004 ···
Nr. anzeigenPreise & Kosten
Provision für Käufer
3,57 % inkl. MwSt.
Lage
Das Objekt befindet sich im beliebten Stadtteil St. Lorenz Nord, einem der attraktivsten Wohngebiete Lübecks. Der Stadtteil zeichnet sich durch historische Straßenzüge mit Altbaubestand um 1900 und eine zentrale, aber ruhige Wohnlage aus.
Der ursprüngliche Kern liegt beidseitig der Fackenburger Allee und Schwartauer...
Das Renditeobjekt
Kategorie
Mehrfamilienhaus
Baujahr
1910
Bezug
nach Vereinbarung
Frei ab
vermietet
Energie & Heizung
Warum sehe ich diese Anzeige? – Du siehst diese Anzeige basierend auf Ihrer Navigation auf unserer Website und den Suchkriterien, die du verwendet hast.
Energieausweistyp
Verbrauchsausweis
Gebäudetyp
Wohngebäude
Baujahr laut Energieausweis
1910
Wesentliche Energieträger
GAS
Gültigkeit
bis 15.03.2033
Effizienzklasse
E
Endenergieverbrauch
131,90 kWh/(m²·a)
Weitere Energiedaten
Energieträger
Gas
Details
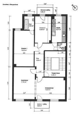
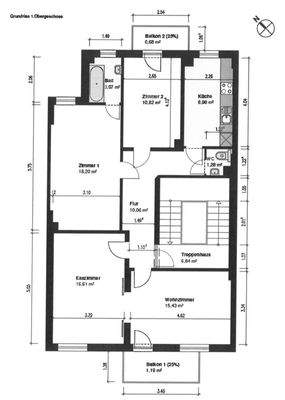
Objektbeschreibung
Voll vermietetes Altbau-Mehrfamilienhaus mit sechs Einheiten, gepflegtem Wohnstandard und Wertsteigerungspotenzial.
Das ca. 1910 erbaute Mehrfamilienhaus in der Wickedestraße überzeugt mit seinem Altbau-Charme, einem gepflegten Zustand der Wohnungen sowie soliden Mieteinnahmen. Die Immobilie umfasst sechs Wohneinheiten...
Ausstattung
+ Top-Lage in Lübeck
+ 6 Wohneinheiten vollvermietet
+ ca. 430?m² Wohnfläche
+ ca. 365?m² Grundstück
+ Voll unterkellert
+ Einbauküchen vorhanden
+ EG bis 3. OG mit 2 Balkonen, Holzdielen, Tageslicht-Wannenbädern
+ DG mit Pantryküchen, Duschbädern, Laminat/Teppich
+ Gaszentralheizung Bj. 2015
+...
Preisinformation
Ist-Mieteinnahmen pro Jahr: 45.854,64 EUR
Weitere Informationen
Sonstiges
Sie erreichen uns unter (04131) 776 442.
Ihre zuständige Ansprechpartnerin ist Frau Tessa Dudek.
Vor Ort arbeiten wir mit einem lokalen Kooperationspartner.
BITTE SENDEN SIE UNS BEI INTERESSE PER E-MAIL EINE ANFRAGE. DIESE WIRD SCHNELLSTMÖGLICH BEARBEITET.
HAFTUNGSAUSSCHUSS:
Alle...
Anbieter der Immobilie
IMMOHANSA Immobilien GmbH & Co. KG
Bunsenstr. 8, 21365 Adendorf
Online-ID: 2m7ja5d
Referenznummer: IH51612
Finde Angebote wie dieses
Hier geht es zu unserem Impressum, den Allgemeinen Geschäftsbedingungen, den Hinweisen zum Datenschutz und nutzungsbasierter Online-Werbung.