

Wohnung zur Miete330 €3 Zimmer • 57 m² • 1. Geschoss
330 €
3 Zimmer • 57 m² • 1. Geschoss
zentrumsnahe 3 Raum-Wohnung in Debschwitz
Merkmale
- Bezug: sofort
- 1. Geschoss
- Kelleranteil
- Badewanne
- Bodenbelag: Fliesen, Laminat
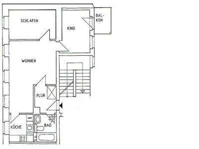
Grundrisse
Grundrisse
1 / 1
Realisiere Dein Projekt
Bausubstanz und Energie
Der Anbieter hat keine Informationen zum Energieverbrauch bereit gestellt.
- Baujahr1900
- HeizungsartZentralheizung
- EnergieträgerElektro, Gas
Mietkosten
Warmmiete
530 €
Kaltmiete
5,79 €/m²
330 €
Nebenkosten
200 €
Kaution
660 €
Lage

Arminiusstr. 36, Debschwitz, Gera (07548)
Weitere Informationen
Weitere Services
Lust auf eine Besichtigung?
Eine Frage zur Immobilie?
Über den Anbieter
SYSTEMA Immobilien GbRMaklerbüro
Schafwiesenstr. 3a, 07548 Gera
Partnerschaft
Herr Heiko KrauseDein Kontakt
Weitere Unterlagen
Online-ID: 2m7lr5k
Referenznummer: 140-3

SYSTEMA Immobilien GbR
Bewertung: 4,5 von 5 Sternen
Wie zufrieden bist du mit dieser Seite (nicht mit der Immobilie selbst)?

