

HAUG Immobilien GmbH
Herr Dietmar Haug
073 ···
Nr. anzeigenPreise & Kosten
Verhandlungsbasis
Provision für Käufer
Der Käufer hat für den Nachweis und/oder die Vermittlung o.g. Immobilie eine Provision in Höhe von 3,0% zzgl. 19% MwSt. an die Fa. HAUG Immobilien GmbH zu zahlen. Der Makler ist berechtigt, auch für die andere Seite provisionspflichtig tätig zu werden.
Lage
- Sonnige und ruhige zentrale Ortslage
- Ochsenhausen- Laubach liegt im Einzugsbereich der Städte Biberach a.d. Riss sowie Memmingen.
Hier sind Weltfirmen wie z.B.: Boerhinger Ingelheim, Liebherr, Handtmann, KaVo, Magnet- Schultz GmbH, Goldhofer, Pfeifer, Berger, Hans Kolb usw... und vorallen der Flughafen Memmingen...
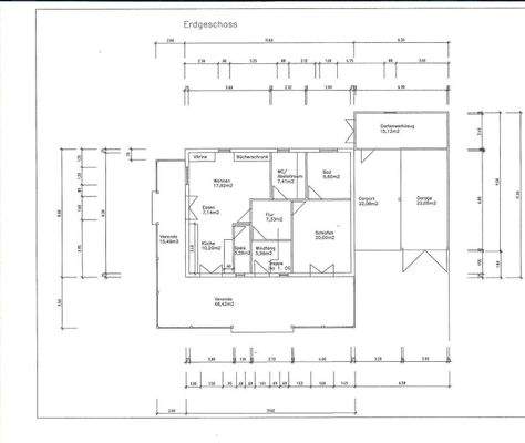
Das Haus
Kategorie
Einfamilienhaus
Baujahr
2020
Bezug
Nach Vereinbarung
Derzeitige Nutzung
frei
Energie & Heizung
Warum sehe ich diese Anzeige? – Du siehst diese Anzeige basierend auf Ihrer Navigation auf unserer Website und den Suchkriterien, die du verwendet hast.
Weitere Energiedaten
Haustyp
KfW 55
Energieträger
Elektro
Details
Objektbeschreibung
Dieses wunderbare Einfamilienhaus liegt in ruhiger und von der Sonne verwöhnten Lage und präsentiert sich auf einem großzügigen Grundstück mit ca. 690 qm.
Das Domizil wurde im Jahre 2020 fertiggestellt und in Richtung New England Style erbaut. Diese Architektur ist verspielt, verwinkelt, die Wohnräume sind offen...
Weitere Informationen
Sonstiges/ Hinweise:
- Kindergarten und Einkaufsmöglichkeit befindet sich am Ort
- Auf das Widerspruchsrecht wurde der Interessent und/ oder Käufer ausdrücklich hingewiesen und aufgeklärt.
- Es gelten die allgemeinen Geschäftsbedingungen der Fa. HAUG Immobilien GmbH. Keine Haftung und/ oder Gewähr für Expose...
Anbieter der Immobilie
HAUG Immobilien GmbH
Marktplatz 25, 88400 Biberach

Online-ID: 2m7lr5n
Finde Angebote wie dieses
Hier geht es zu unserem Impressum, den Allgemeinen Geschäftsbedingungen, den Hinweisen zum Datenschutz und nutzungsbasierter Online-Werbung.