

Bien-Zenker GmbH - Mechthild Friemel
Frau Mechthild Friemel
025 ···
Nr. anzeigenPreise & Kosten
Provision für Käufer
Bitte beachte, das Angebot kann bei Vertragsabschluss die Zahlung einer Provision beinhalten. Weitere Informationen erhältst Du vom Anbieter.
Lage
Die Gemeinde Laer bietet Ihnen eine hervorragende Infrastruktur mit zahlreichen Vorteilen. Im Umkreis finden Sie vielfältige Bildungseinrichtungen, darunter Grundschulen und weiterführende Schulen, die kurze Wege für Familien garantieren. Medizinische Versorgung ist durch Ärzte, Apotheken und Gesundheitszentren in der Nähe...
Das Haus
Kategorie
Mehrfamilienhaus
Details
Objektbeschreibung
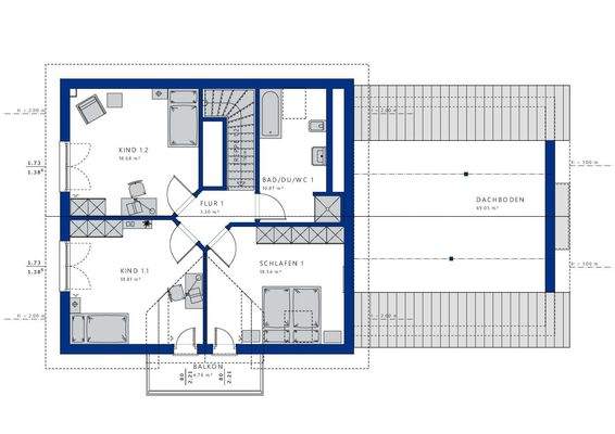
Das CELEBRATION 211 ist mehr als nur ein Haus - es ist ein durchdachtes Zuhause, das Generationen verbindet und modernste Wohnkonzepte perfekt vereint. Dieses elegante Zweifamilienhaus ist speziell für Familien konzipiert, die Nähe und gleichzeitig Privatsphäre schätzen. Mit einer Gesamtwohnfläche von 205 Quadratmetern bietet...
Ausstattung
Das CELEBRATION 211 bietet Ihnen eine durchdachte Raumaufteilung mit insgesamt 8 Zimmern, die maximale Flexibilität und Wohnkomfort ermöglicht. Sieben Schlafzimmer und drei Badezimmer schaffen Raum für die unterschiedlichsten Lebenssituationen - ob für Familien mit Kindern, Generationen unter einem Dach oder als...
Weitere Informationen
Sonstiges
Hier finden Sie weitere Informationen zur Traumhaus-Fee - https://www.bien-zenker.de/haeuser/bien-zenker-in-ihrer-naehe/handelsvertretung/mechthild-friemel-everswinkel.html#section-no-result
Stichworte
Anzahl der Schlafzimmer: 7, Anzahl der Badezimmer: 3, Anzahl Balkone: 1, Anzahl Terrassen: 1, Lage...
Anbieter der Immobilie
Bien-Zenker GmbH - Mechthild Friemel
Roggenkamp 19, 48324 Sendenhorst

Online-ID: 2m7mg5l
Referenznummer: 12313-48366-CEL211ZAF55-
Finde Angebote wie dieses
Hier geht es zu unserem Impressum, den Allgemeinen Geschäftsbedingungen, den Hinweisen zum Datenschutz und nutzungsbasierter Online-Werbung.