FALC Immobilien Nürnberg-Süd (Cono Manzione)

Herr Cono Manzione

"Gemütliche 2-Zimmer-Wohnung mit Balkon in Fürth - Ideal zum Selbstbezug oder als Anlage"

€ 119.000
Kaufpreis
40,57 m²
Fläche ca.
2
Zimmer
k.A.
Grundstücksfl.

Der Anbieter dieses Objekts hat gegenüber der AVIV Germany GmbH als Betreiber dieses Online-Marktplatzes erklärt, nicht als Unternehmer im Sinne des § 1 KSchG zu handeln. Die im Verbraucherschutzrecht der Union verankerten Verbraucherrechte (insbesondere Informationspflichten und Rücktritts- bzw. Widerrufsrechte) finden auf den Vertrag zwischen dem Anbieter des Objekts und Ihnen (dem Interessenten) keine Anwendung.

Gewerblicher Anbieter

Der Anbieter dieses Objekts hat gegenüber der AVIV Germany GmbH als Betreiber dieses Online-Marktplatzes erklärt, als Unternehmer im Sinne des § 1 KSchG zu handeln.

AdresseStraße nicht freigegeben
90763 Fürth 
(Südstadt)
Auf Karte ansehen

Preise & Kosten

Kaufpreis € 119.000 Hausgeld € 365 Preis/m² € 2.933,20

Provision für Käufer

3,57 % inkl. MwSt.

Lage

Diese Immobilie befindet sich in einem lebhaften Wohnviertel von Fürth, das sowohl durch seine zentrale Lage als auch durch die Vielfalt an verfügbaren Annehmlichkeiten überzeugt. Die ruhige Straße strahlt eine einladende Atmosphäre aus und ist von historischen Gebäuden umgeben, die dem Viertel seinen charmanten Charakter...

Mehr anzeigen

Das Renditeobjekt

Baujahr

1995

Frei ab

vermietet

Geschosse

3 Geschosse

  • Balkon
  • Böden: Fliesenboden, Parkett
  • voll unterkellert
  • Bad mit Dusche
  • barrierefrei
  • gepflegt
  • 1 Stellplatz: Tiefgarage
  • Personenaufzug

Energie & Heizung

A+
A
B
C
D
E
F
G
H
0 25 50 75 100 125 150 175 200 225 250 +

Energieausweistyp

Verbrauchsausweis

Gebäudetyp

Wohngebäude

Wesentliche Energieträger

Gas

Gültigkeit

22.02.2018 bis 21.02.2028

Effizienzklasse

C

Endenergieverbrauch

91,40 kWh/(m²·a)

Weitere Energiedaten

Energieträger

Gas

Heizungsart

Zentralheizung

Details

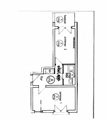
Objektbeschreibung

Charmante 2-Zimmer-Wohnung mit Balkon - bereits vermietet und ideal für Kapitalanleger!

Diese gepflegte 2-Zimmer-Wohnung mit ca. 40,57?m² Wohnfläche befindet sich in einem ruhigen, gepflegten Mehrfamilienhaus und eignet sich hervorragend für Singles, Paare oder Kapitalanleger.

Der lichtdurchflutete Wohnbereich...

Mehr anzeigen

Ausstattung

Ausstattung im Überblick
Wohnfläche: ca. 40,57?m²

Baujahr: 1995 - gepflegtes Mehrfamilienhaus mit zeitloser Architektur

Räumlichkeiten: 2 gut geschnittene, helle Zimmer mit durchdachter Aufteilung

Bodenbeläge: Wohnbereich mit modernem, pflegeleichtem Laminatboden

Badezimmer: Zeitlos gefliest...

Mehr anzeigen

Preisinformation

1 Tiefgaragenstellplatz

Weitere Informationen

Sonstiges
Falls Sie Wert auf eine ruhige Lage, eine durchdachte Raumaufteilung und ein gehobenes Wohnumfeld legen, könnte dieses Objekt genau das Richtige für Sie sein. Wir bieten Ihnen eine kostenlose 24/7-Hotline unter der Rufnummer 0800-6460646, über die Sie uns jederzeit erreichen können. Wenn Sie Interesse an der...

Mehr anzeigen

Dokumente

file_pdfFinanzierungsvorschlag-FALC-CoMa-78313.pdfangle_right

Anbieter der Immobilie

Partner

FALC Immobilien Nürnberg-Süd (Cono Manzione)

im Durchschnitt  3,00  Sterne
(bei 13 Bewertungen)

Laufamholzstraße 399, 90482 Nürnberg

user

Herr Cono Manzione

Dein Ansprechpartner

Anbieter-Website Anbieter-Profil Anbieter-Impressum

Online-ID: 2m7pm5g

Referenznummer: FALC-CoMa-78313

Finde Angebote wie dieses

imageimageimage

Hier geht es zu unserem Impressum, den Allgemeinen Geschäftsbedingungen, den Hinweisen zum Datenschutz und nutzungsbasierter Online-Werbung.