

Immobilien Bart-Vermittlung und Finanzierung
Herr Yannik Weber
+49 ···
Nr. anzeigenPreise & Kosten
Provision für Käufer
3,57 % inkl. MwSt
Lage
FREUDENBURG, am Fuße des 439 m hohen Eiderbergs gelegen, ist eine Ortsgemeinde im Landkreis Trier-Saarburg in Rheinland-Pfalz. Der Ort gehört der Verbandsgemeinde Saarburg an. Südlich des Hauptortes verläuft die Landesgrenze zum Saarland. Freudenburg verfügt über einen Kindergarten und eine Grundschule. Zahlreiche Sport- und...
Das Haus
Kategorie
Einfamilienhaus
Energie & Heizung
Warum sehe ich diese Anzeige? – Du siehst diese Anzeige basierend auf Ihrer Navigation auf unserer Website und den Suchkriterien, die du verwendet hast.
Energieausweistyp
Bedarfsausweis
Gebäudetyp
Wohngebäude
Baujahr laut Energieausweis
1900
Wesentliche Energieträger
OEL
Gültigkeit
bis 01.09.2029
Effizienzklasse
H
Endenergiebedarf
286,60 kWh/(m²·a)
Weitere Energiedaten
Energieträger
Öl
Heizungsart
Zentralheizung
Details
Objektbeschreibung
15 MIN BIS L-REMICH/L-SCHENGEN:
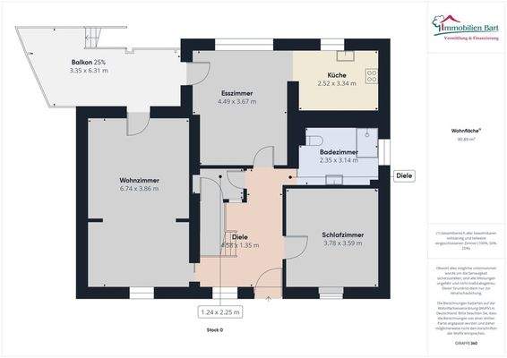
Hier in FREUDENBURG bieten wir Ihnen dieses ca. 148 m² große Wohnhaus auf einem 2.410 m² großen Grundstück an. Im Jahr 2019 wurde das Badezimmer modernisiert, im Jahr 2021 wurden Erneuerungen der Fenster und der Elektrik im Erdgeschoss durchgeführt.
Besonderheiten dieser...
Ausstattung
Die Böden sind mit Fliesen und Laminat belegt.
Die Beheizung erfolgt durch eine Öl-Zentralheizung.
Preisinformation
1 Stellplatz
1 Garagenstellplatz
Weitere Informationen
Sonstiges
Unser gesamtes Immobilienangebot können Sie unter www.immobilien-bart.de einsehen.
Haben wir Ihr Interesse geweckt? Für einen unverbindlichen Besichtigungstermin stehen wir Ihnen nach vorheriger Terminabsprache gerne zur Verfügung. Bitte haben Sie Verständnis dafür, dass wir Anfragen nur bearbeiten, wenn...
Anbieter der Immobilie

Online-ID: 2m7r85v
Referenznummer: 10314
Finde Angebote wie dieses
Hier geht es zu unserem Impressum, den Allgemeinen Geschäftsbedingungen, den Hinweisen zum Datenschutz und nutzungsbasierter Online-Werbung.