
Projekt Wohnen Gruppe GmbH
Frau Lucija Klepic
+43 ···
Nr. anzeigenPreise & Kosten
Provision für Käufer
3% des Kaufpreises zzgl. 20% USt.
Lage
Die Wohnung befindet sich in der beliebten Peter-Tunner-Gasse 43 im 15. Grazer Stadtbezirk Eggenberg - einer Wohngegend, die sich durch ihre ausgezeichnete Infrastruktur, gute Anbindung und hohe Lebensqualität auszeichnet. Die Lage bietet den idealen Mix aus urbanem Komfort und angenehmer Wohnruhe.In unmittelbarer Nähe finden...
Die Wohnung
Wohnungslage
2. Geschoss
Bezug
ab sofort!
Wohnanlage
Energie & Heizung
Warum sehe ich diese Anzeige? – Du siehst diese Anzeige basierend auf Ihrer Navigation auf unserer Website und den Suchkriterien, die du verwendet hast.
Heizwärmebedarf (HWB)
64,20 kWh/(m²·a)
Gesamtenergieeffizienz (fGEE)
1,45
Weitere Energiedaten
Energieträger
Fernwärme
Details
Objektbeschreibung
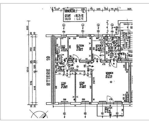
Willkommen in Ihrem neuen Zuhause in der Peter-Tunner-Gasse - Geräumige 4-Zimmer-Wohnung mit sonnigem Balkon und viel Potenzial!
* 4 separat begehbare Zimmer - ideal für Familien oder Paare mit Platzbedarf
Alle Räume sind vom Flur oder Wohnbereich aus erreichbar und bieten optimale...
Preisinformation
TG Platz zusätzlich EUR 16.000.-, 1 Stellplatz
1 Garagenstellplatz
Weitere Informationen
Stichworte
Tiefgarage vorhanden, Süd-Balkon/Terrasse, Nutzfläche: 88,24 m², Anzahl der Badezimmer: 1, Anzahl der separaten WCs: 1, Anzahl Balkone: 1, Balkon-Terrassen-Fläche: 6,46 m², Kellerfläche: 5,45 m², Bundesland: Steiermark, Wohnungsnr.: 6a
Anbieter der Immobilie
Projekt Wohnen Gruppe GmbH
Neufeldweg 250a, 8041 GRAZ
Online-ID: 2m7rm5t
Referenznummer: OBGC2025122315395720980ada6427b
Finde Angebote wie dieses
Günstige Immobilienfinanzierung einfach online berechnen
Persönliches Angebot berechnenWarum sehe ich diese Werbung? – Du siehst diese Werbung basierend auf Deiner Navigation auf unserer Website und der von Dir verwendeten Suchkriterien.
Diese Werbung wird bezahlt von durchblicker
Werbung melden
Hier geht es zu unserem Impressum, den Allgemeinen Geschäftsbedingungen, den Hinweisen zum Datenschutz und nutzungsbasierter Online-Werbung.