
TOM Krauss Immo GmbH
Frau Edith Krauss
004 ···
Nr. anzeigenDieses Angebot ist Teil des Neubauprojekts
DAS WARICH
Preise & Kosten
Provision für Käufer
3% zzgl. 20% Ust.
Lage
Lage/Infrastruktur:
.Nähe Innenstadt
.Nähe Kutschkermarkt, Wiener Hauptuniversität, Universität für Bodenkultur, Medizinische Universität Wien, Allgemeines Krankenhaus (AKH), Wiener Volksoper
.Ideale Nahversorgung (Supermärkte, Drogerien, Bäckerei, Apotheke)
.Hervorragende öffentliche Anbindung
.U6...
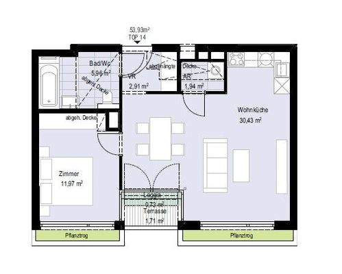
Die Wohnung
Kategorie
Terrassenwohnung
Wohnungslage
3. Geschoss
Bezug
sofort
Wohnanlage
Das Neubauprojekt
Energie & Heizung
Warum sehe ich diese Anzeige? – Du siehst diese Anzeige basierend auf Ihrer Navigation auf unserer Website und den Suchkriterien, die du verwendet hast.
Heizwärmebedarf (HWB)
25,70 kWh/(m²·a)
Gesamtenergieeffizienz (fGEE)
0,78
Weitere Energiedaten
Energieträger
Fernwärme
Heizungsart
Fußbodenheizung
Details
Objektbeschreibung
Kurzbeschreibung
Ruhig und urban Wohnen im 18. Bezirk. Das moderne Wohnhaus befindet sich unweit der des Kutschkermarkts in einer ruhigen Seitengasse. Aufgrund der Nähe zur Innenstadt sind die Wohnungen zur Eigennutzung, als auch als Anlageobjekt attraktiv.
Objekt
Im 1. Dachgeschoss des Neubaus befindet sich...
Ausstattung
Ausstattung:
.Großteils Loggien, Balkons oder Terrassen, im EG Eigengärten
.Hauseigene Tiefgarage mit 13 Stellplätzen (optional)
.Eigene Kellerabteile
.Fußbodenheizung über Fernwärme
.Überwiegend bodentiefe Fenster mit Vorbereitung für elektrischen Sonnenschutz außen
.Klimavorbereitung in den...
Weitere Informationen
Sonstiges
Sämtliche Angaben sind ohne Gewähr und beruhen auf Informationen des Auftraggebers.
Bitte haben Sie Verständnis, dass wir nur Anfragen mit vollständiger Anschrift und Telefonnummer beantworten können! Wir weisen auf ein wirtschaftliches Naheverhältnis zum Auftraggeber und auf unsere Tätigkeit als Doppelmakler...
Anbieter der Immobilie
TOM Krauss Immo GmbH
Mexikoplatz 26/3, 1020 WIEN
Online-ID: 2m7u35h
Referenznummer: TKI-00359_14
Finde Angebote wie dieses
Günstige Immobilienfinanzierung einfach online berechnen
Persönliches Angebot berechnenWarum sehe ich diese Werbung? – Du siehst diese Werbung basierend auf Deiner Navigation auf unserer Website und der von Dir verwendeten Suchkriterien.
Diese Werbung wird bezahlt von durchblicker
Werbung melden
Hier geht es zu unserem Impressum, den Allgemeinen Geschäftsbedingungen, den Hinweisen zum Datenschutz und nutzungsbasierter Online-Werbung.