
Bien-Zenker GmbH Verkaufsbüro
Herr Enrico Brauner
+49 ···
Nr. anzeigenPreise & Kosten
Provision für Käufer
Bitte beachte, das Angebot kann bei Vertragsabschluss die Zahlung einer Provision beinhalten. Weitere Informationen erhältst Du vom Anbieter.
Lage
Dummerstorf bietet Ihnen eine hervorragende Lage mit einer Vielzahl an Möglichkeiten für Bildung, Gesundheit, Einkauf und Freizeit. In unmittelbarer Umgebung finden Sie mehrere Kindergärten und Schulen, die eine optimale Betreuung und Ausbildung für Ihre Kinder gewährleisten. Die gute Anbindung an das öffentliche Verkehrsnetz...
Das Haus
Kategorie
Einfamilienhaus
Energie & Heizung
Warum sehe ich diese Anzeige? – Du siehst diese Anzeige basierend auf Ihrer Navigation auf unserer Website und den Suchkriterien, die du verwendet hast.
Weitere Energiedaten
Haustyp
Niedrigenergiehaus
Details
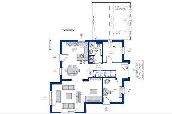
Objektbeschreibung
Mit seinem eleganten, unaufdringlichen Erscheinungsbild passt sich das EDITION 145 sowohl in ländliche als auch in urbane Wohngebiete ein. Das Innere des Hauses überzeugt mit einem durchdachten Raumkonzept und jeder Menge Wohnkomfort. Vom offenen Wohn-, Ess- und Kochbereich im Erdgeschoss bis hin zu den gemütlichen...
Ausstattung
Die Ausstattung dieses Bien-Zenker Hauses ist durchdacht und hochwertig, sodass Sie sich in Ihrem neuen Zuhause rundum wohlfühlen können. Im offenen Wohn-, Ess- und Kochbereich erwartet Sie eine moderne Einbauküche, die nicht nur funktional ist, sondern auch zum geselligen Beisammensein einlädt. Hier können Sie kulinarische...
Weitere Informationen
Sonstiges
Eine abgebildete Doppelgarage ist im Preis kalkuliert.
Eine energetische Aufwertung für den Standard KfW 40 und KfW 40 QNG ist möglich.
Stichworte
1 Etagen, Lage im Ort
Anbieter der Immobilie

Bien-Zenker GmbH Verkaufsbüro
Loggerweg 12, 18055 Rostock
Online-ID: 2m7uq5l
Referenznummer: 12716-1490_K1
Finde Angebote wie dieses
Hier geht es zu unserem Impressum, den Allgemeinen Geschäftsbedingungen, den Hinweisen zum Datenschutz und nutzungsbasierter Online-Werbung.