

BoHolz Haus
Herr Wolfram Gebhardt
017 ···
Nr. anzeigenPreise & Kosten
Provision für Käufer
provisionsfrei
Lage
Schönbrunn, idyllisch im südlichen Odenwald gelegen, bietet eine Wohnlage, die Ruhe, Natur und Familienfreundlichkeit perfekt vereint. Umgeben von weitläufigen Wäldern und sanften Hügeln genießen Sie hier ein naturnahes Umfeld mit hohem Erholungswert – ideal für alle, die entspannt und zugleich gut angebunden leben...
Das Haus
Kategorie
Einfamilienhaus
Energie & Heizung
Warum sehe ich diese Anzeige? – Du siehst diese Anzeige basierend auf Ihrer Navigation auf unserer Website und den Suchkriterien, die du verwendet hast.
Energieausweis: für diesen Gebäudetyp nicht notwendig
Weitere Energiedaten
Haustyp
KfW 55
Heizungsart
Fußbodenheizung, Luft-/Wasser-Wärmepumpe
Details
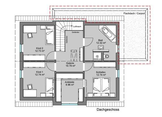
Objektbeschreibung
Modernes Einfamilienhaus mit markantem Giebel – zeitlos, großzügig und durchdacht geplant
Dieses Haus vereint moderne Architektur mit zeitloser Eleganz und überzeugt durch eine klare Formensprache sowie einen markanten Giebel, der dem Gebäude Charakter verleiht.
Im Erdgeschoss empfängt Sie ein großzügiger...
Ausstattung
Mit unschlagbaren VORTEILEN
Nachhaltige diffusionsoffene Außenwände mit Holzfaserdämmplatte für sommerlichen Hitzeschutz
Sicherheitsgeprüfte Haustüre (RC2N Verriegelung) -Schwellenabdichtung mit Folienverbundblech – dies ermöglicht einen schwellenfreien Zugang
Dachkonstruktion mit einer Schneelast von...
Weitere Informationen
*Nachhaltig
*Traditionell
Partnerschaftlich mit voller Kompetenz!
Finanzierungs- und GrundstückSERVICE
Im Preis ist das GRUNDSTÜCK und die BODENPLATTE enthalten
GERNE BAUEN WIR DAS HAUS AUCH AUF IHREM EIGENEN GRUNDSTÜCK
Das Angebot versteht sich zzgl. der Erwerbsnebenkosten für das Grundstück (u.U...
Dokumente
Anbieter der Immobilie
BoHolz Haus
Kantstraße 8, 64668 Rimbach

Online-ID: 2m7vf5q
Referenznummer: 09-12.25-69463
Finde Angebote wie dieses
Hier geht es zu unserem Impressum, den Allgemeinen Geschäftsbedingungen, den Hinweisen zum Datenschutz und nutzungsbasierter Online-Werbung.