

Kittelmann & Fischer Immobilien
Herr Philipp Streckenbach
053 ···
Nr. anzeigenPreise & Kosten
Provision für Käufer
provisionsfrei
Lage
Eischott ist ein Ortsteil der Gemeinde Rühen im Landkreis Gifhorn, befindet sich jedoch deutlich näher an Wolfsburg (ca. 15 Minuten) als an Gifhorn (ca. 25 Minuten). Eischott hat nur gute 800 Einwohner und liegt nicht an einer Durchfahrtsstraße in eine der größeren Städte, was die ländliche Ruhe garantiert...
Das Haus
Kategorie
Einfamilienhaus
Baujahr
1930
Bezug
sofort
Energie & Heizung
Warum sehe ich diese Anzeige? – Du siehst diese Anzeige basierend auf Ihrer Navigation auf unserer Website und den Suchkriterien, die du verwendet hast.
Energieausweistyp
Bedarfsausweis
Gebäudetyp
Wohngebäude
Wesentliche Energieträger
Öl
Gültigkeit
14.05.2025 bis 13.05.2035
Effizienzklasse
H
Endenergiebedarf
365,80 kWh/(m²·a)
Weitere Energiedaten
Energieträger
Öl
Heizungsart
Zentralheizung
Details
Objektbeschreibung
Wir freuen uns, Ihnen dieses Einfamilienhaus mit großem Grundstück präsentieren zu dürfen! Um Ihnen einen ersten Eindruck zu vermitteln, haben wir folgende Medien für Sie vorbereitet:
. Detailliertes Exposé: Fordern Sie die vollständige Objektbeschreibung mit allen relevanten Informationen an.
. 360°-Rundgang...
Ausstattung
- provisionsfrei
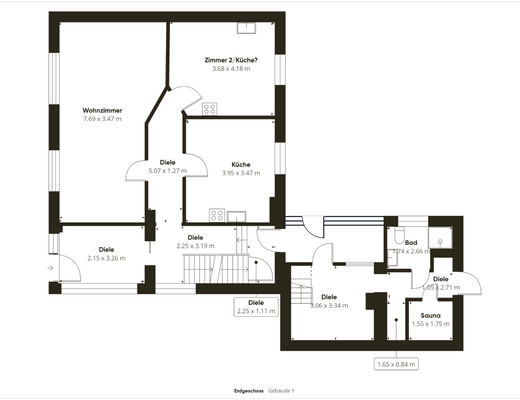
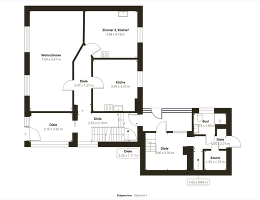
- Haupthaus: zwei Etagen, fünf Zimmer
- Anbau: zwei Etagen und zusätzliches Badezimmer im EG
- Ausbau weiterer Zimmer im überdachten Anbau möglich
- Wohnfläche gesamt: 182 qm
- Grundstück: 1251 qm
- sichtgeschützter Garten, ruhige Lage
- zwei Garagen und weitere Parkmöglichkeiten
-...
Preisinformation
4 Garagenstellplätze
Weitere Informationen
Sonstiges
Auch Sie möchten eine Immobilie verkaufen? Wir bieten unseren Kunden folgende Wege zur Vermarktung an:
Szenario 1: Wir besichtigen zusammen Ihre Immobilie um eine individuelle Strategie für den Vertrieb und den realisierbaren Preis zu besprechen. Dabei nehmen wir Ihnen für gewöhnlich alle anfallenden...
Anbieter der Immobilie

Online-ID: 2m7vp5f
Referenznummer: 7733
Finde Angebote wie dieses
Hier geht es zu unserem Impressum, den Allgemeinen Geschäftsbedingungen, den Hinweisen zum Datenschutz und nutzungsbasierter Online-Werbung.