
Franz Staudt Immobilien GmbH
Frau Eva-Maria Staudt-Hochrein
+49 ···
Nr. anzeigenPreise & Kosten
Provision für Käufer
2,5% inkl. 19% MwSt.
Lage
Die ruhige und zugleich ausgezeichnet anfahrbare Lage in der Kleinostheimer Waldstadt bietet Ihnen das Beste aus beiden Welten, eine wunderbare Natur, direkt vor der Haustüre und gleichzeitig eine gute Anbindung an Aschaffenburg, Alzenau und in die gesamte Rhein-Main-Region mit Airport FRA (Entfernung ca. 40 km), Zufahrten...
Das Haus
Kategorie
Bungalow
Baujahr
1964
Bezug
Nach Absprache
Energie & Heizung
Warum sehe ich diese Anzeige? – Du siehst diese Anzeige basierend auf Ihrer Navigation auf unserer Website und den Suchkriterien, die du verwendet hast.
Energieausweistyp
Bedarfsausweis
Gebäudetyp
Wohngebäude
Wesentliche Energieträger
Gas
Gültigkeit
seit 26.05.2025
Effizienzklasse
H
Endenergiebedarf
328,00 kWh/(m²·a)
Weitere Energiedaten
Energieträger
Gas
Heizungsart
Zentralheizung
Details
Objektbeschreibung
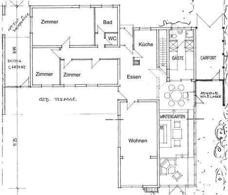
Bei dieser Immobilie in der beliebten Wohngegend "Waldstadt" gilt der Slogan LAGE-LAGE-LAGE, denn der Bungalow befindet sich direkt am Bebauungsgebiet-Ende mit einem wunderschönen Grundstück und verfügt zusätzlich über ein eigenes Waldgrundstück.
Der im Atrium-Stil erbaute Bungalow - typisch für die Waldstadt - verfügt...
Ausstattung
Baujahr 1964
1989 Anbau Wintergarten und Carport
Baujahresbedingt sind natürlich Umbau- und Modernisierungsmaßnahmen sowie eine energetische Optimierung nötig. Dies gibt einem neuen Käufer aber die Möglichkeit, seine eigenen Ideen zu verwirklichen und das Haus zu seinem zu machen.
Heizung:
Gaszentralheizung...
Weitere Informationen
Hinweis
Das Angebot erfolgt unter dem Hinweis, dass wir bei Abschluss eines Kaufvertrages durch unseren Nachweis oder unsere Vermittlung eine Provision in Höhe von 2,5 % incl. gesetzl. MwSt. aus dem Kaufpreis dem Käufer berechnen. Zahlbar nach Rechnungsstellung und Kaufpreisfälligkeit.
Hinweis: Wir sind mit der...
Anbieter der Immobilie
Franz Staudt Immobilien GmbH
Wolfslaufstraße 7, 63768 Hösbach
Online-ID: 2m7wh5n
Referenznummer: P3268
Finde Angebote wie dieses
Hier geht es zu unserem Impressum, den Allgemeinen Geschäftsbedingungen, den Hinweisen zum Datenschutz und nutzungsbasierter Online-Werbung.