

Daniela Mauritz Immobilien
Frau Daniela Mauritz
080 ···
Nr. anzeigenPreise & Kosten
Provision für Käufer
provisionsfrei
Lage
Ebersberg trägt seit langem den Titel "Die Perle des Münchner Ostens" und dafür sprechen viele Gründe: Die attraktive Stadt mit rund 12.800 Einwohnern liegt mit 558 m ü NN auf der höchsten Erhebung eines Endmoränenrückens, ca. 30 km östlich von München, am südlichen Rand des Ebersberger Forstes. Dieser ist eines der größten...
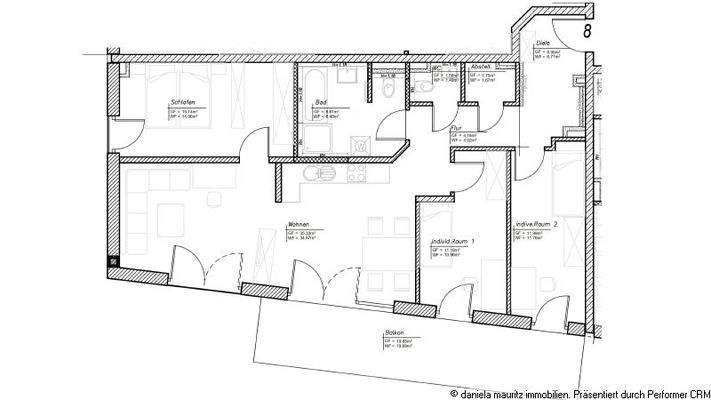
Die Wohnung
Wohnungslage
1. Geschoss
Bezug
Sommer 2025
Wohnanlage
Energie & Heizung
Warum sehe ich diese Anzeige? – Du siehst diese Anzeige basierend auf Ihrer Navigation auf unserer Website und den Suchkriterien, die du verwendet hast.
Energieausweistyp
Bedarfsausweis
Gebäudetyp
Wohngebäude
Gültigkeit
bis 22.09.2034
Effizienzklasse
B
Endenergiebedarf
66,00 kWh/(m²·a)
Weitere Energiedaten
Energieträger
Pellets
Heizungsart
Fußbodenheizung
Details
Objektbeschreibung
In bester Lage von Ebersberg, nur einen Katzensprung von der Stadtmitte und dem idyllischen Klostersee entfernt, ist dieses moderne, vollunterkellerte Wohnhaus mit drei Etagen und 14 exklusiven Wohnungen samt Tiefgarage entstanden. Sichern Sie sich die Chance, eine der letzten verfügbaren Wohnungen zu Ihrem neuen Zuhause zu...
Ausstattung
Ausstattung Wohnung 8 / 1.OG:
Hier fühlt man sich sofort zuhause. Zu dieser modernen und familienfreundlichen Wohnung (mit ca. 105m² Wohnfläche) im Obergeschoss des neu errichteten Mehrfamilienhauses gelangt man bequem, über das gemeinsame Treppenhaus oder dem Fahrstuhl, regenfrei von der Tiefgarage bis zur Wohnungstür...
Preisinformation
1 Garagenstellplatz, Kaufpreis: 19.500,00 EUR
Weitere Informationen
Stichworte
Garage vorhanden, Anzahl der Schlafzimmer: 3, Anzahl der Badezimmer: 1, Anzahl Balkone: 1, Balkon-Terrassen-Fläche: 20,00 m², 2 Etagen
Sonstiges/Wohnen: seniorengerechtes Wohnen
Anbieter der Immobilie

Daniela Mauritz Immobilien
Ulrichstraße 3, 85560 Ebersberg

Online-ID: 2m7zn5m
Referenznummer: 3838
Finde Angebote wie dieses
Hier geht es zu unserem Impressum, den Allgemeinen Geschäftsbedingungen, den Hinweisen zum Datenschutz und nutzungsbasierter Online-Werbung.